EasyManua.ls Logo

Honeywell NOTIFIER NFW-50X - Page 21

Honeywell NOTIFIER NFW-50X
158 pages
To Next Page IconTo Next Page
To Next Page IconTo Next Page
To Previous Page IconTo Previous Page
To Previous Page IconTo Previous Page
Loading...
NFW-50X Manual — P/N LS10129-001NF-E:C 7/25/2018 21
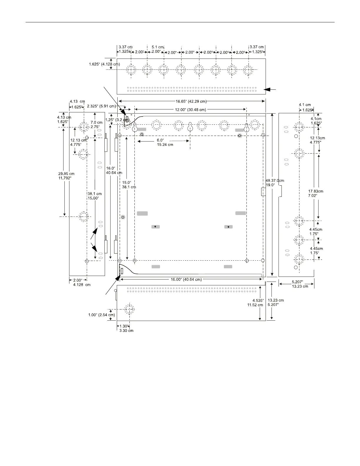
Mounting the Backbox Installation
Figure 2.2 NFW-50X Cabinet Mounting
9050udencl.wmf
Semi-Flush
Mounting
Do not recess box more
than 3.875” into wall to
avoid covering venting
holes on top of box.
Hinge Slot for optional
Dress Panel
Hinge Slot for optional
Dress Panel
Semi-flush
mounting hole
Mounting
slots for
optional
Trim Ring

Table of Contents

Related product manuals