EasyManua.ls Logo

HP StorageWorks P2000 - G3 MSA Array Systems - Direct Attach Configuration; Connecting Direct Attach Configurations; Fibre Channel SFP Cable Length Specifications; Single Controller Configuration

HP StorageWorks P2000 - G3 MSA Array Systems
74 pages
Print Icon
To Next Page IconTo Next Page
To Next Page IconTo Next Page
To Previous Page IconTo Previous Page
To Previous Page IconTo Previous Page
Loading...
42 Connecting hosts
with a Fibre Channel small form-factor pluggable (SFP transceiver) connector, supporting data rates up to 8
Gb per second, with a 1.2 GHz processor and 2 GB cache. The HP P2000 G3 MSA System FC controller
enclosures can alternatively be cabled to support the Remote Snap replication feature (licensed option) via
the FC host interface ports.
The models referenced above support Fibre Channel Arbitrated Loop (loop) topology by default.
Connection mode can be set to loop or point-to-point. Loop protocol can be used in a physical loop or in
a direct connection between two devices. Point-to-point protocol can only be used on a direct physical
connection between exactly two devices.
Connecting direct attach configurations
The P2000 G3 MSA System FC LFF/P2000 G3 MSA System FC SFF support up to four direct-connect
server connections, two per controller module. Connect appropriate cables from the servers’ HBAs to the
controller host ports as described below, and shown in the following illustrations.
To connect the P2000 G3 MSA System FC LFF/P2000 G3 MSA System FC SFF to a server or HBA
switch
using the controller’s FC host portsselect Fibre Channel cables supporting 2/4/8 Gb data
rates, that are compatible with the controller module’s host port SFP connector. Such cables are also
used for connecting a local storage system to a remote storage system via a switch, to facilitate use of
the optional Remote Snap replication feature.
The table below maps SFP transceiver data rates to relative fiber optic cable characteristics (i.e., cable
length, multimode fiber type (MMF), and ISO/IEC optical multimode cable performance standards).
When transferring data through FC connections, cable lengths should not exceed the lengths listed for
each given fiber type and performance code within the applicable data rate (2/4/8 Gb) class.
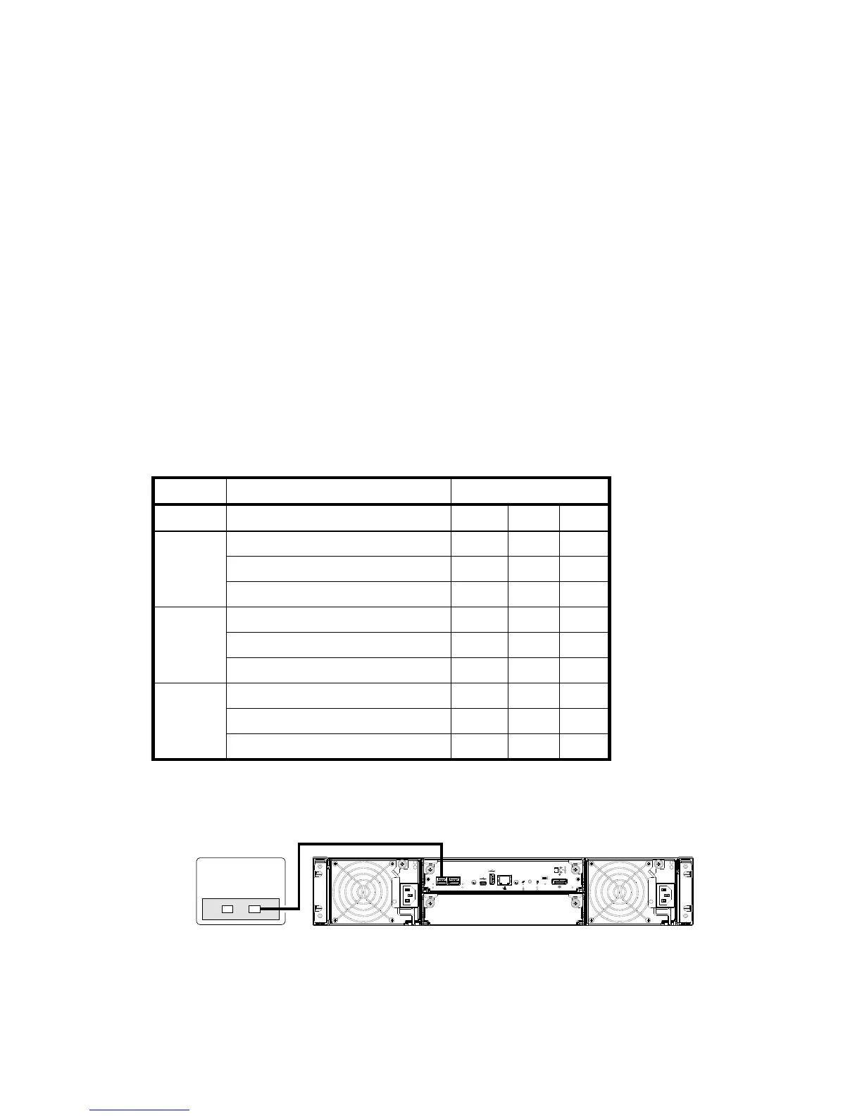
Single controller configuration
One server/one HBA/single path
Table 7 Maximum cable lengths for 850nm Fibre Channel SFP transceivers
SFP data Representative FC cable types
Cable performance code
Data rate
MMF FC Cable Length Designators
OM1 OM2 OM3
8Gbps
21m with 62.5μm fiber type X
50m with 50μm fiber type X
150m wit h 50 μm fiber type X
4Gbps
70m with 62.5μm fiber type X
150m wit h 50 μm fiber type X
380m with 50μm fiber type X
2Gbps
150m wit h 62.5 μm fiber type X
300m with 50μm fiber type X
500m with 50μm fiber type X
6Gb/s
Server

Related product manuals