EasyManua.ls Logo

Huawei TP482000B-N20B1 - Page 33

Huawei TP482000B-N20B1
107 pages
Print Icon
To Next Page IconTo Next Page
To Next Page IconTo Next Page
To Previous Page IconTo Previous Page
To Previous Page IconTo Previous Page
Loading...
TP482000B V300R002C03 Telecom Power
(TP482000B-N20B1, TP482000B-N20B2,
TP481200B-N20B1, and TP481200B-N20B2)
User Manual
4 Cabinet Configurations
Copyright © Huawei Technologies Co., Ltd.
27
No.
Name
Specifications
Remarks
7
Battery fuse
Single layer: two NT4 fuses
8
SMU05A
1 PCS
9
Power distribution
monitoring unit
1 PCS
TP481200B-N20B2
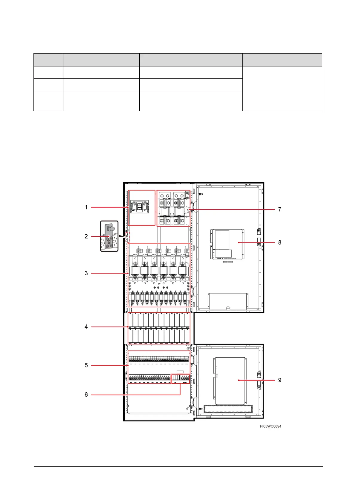
Figure 4-4 and Table 4-4 illustrate the TP481200B-N20B2 configurations. Load routes can be
flexibly configured based on site requirements.
Figure 4-4 TP481200B-N20B2 configurations

Related product manuals