EasyManua.ls Logo

Huawei TP482000B-N20B1 - Page 76

Huawei TP482000B-N20B1
107 pages
Print Icon
To Next Page IconTo Next Page
To Next Page IconTo Next Page
To Previous Page IconTo Previous Page
To Previous Page IconTo Previous Page
Loading...
TP482000B V300R002C03 Telecom Power
(TP482000B-N20B1, TP482000B-N20B2,
TP481200B-N20B1, and TP481200B-N20B2)
User Manual
7 Parts Replacement
Copyright © Huawei Technologies Co., Ltd.
70
Context
To replace the button board, you do not need to disconnect the AC input to the power system.
Procedure
Step 1 Connect the ground cable for the ESD wrist strap, and put on the ESD wrist strap and ESD
gloves.
Step 2 Record the positions of cables connected to RJ45 ports on the power distribution monitoring
unit, and disconnect the cables from the ports.
Step 3 Remove the cover from the power distribution monitoring unit, as shown in Figure 1.
Step 4 Record the positions of cables connected to the button board, and disconnect the cables.
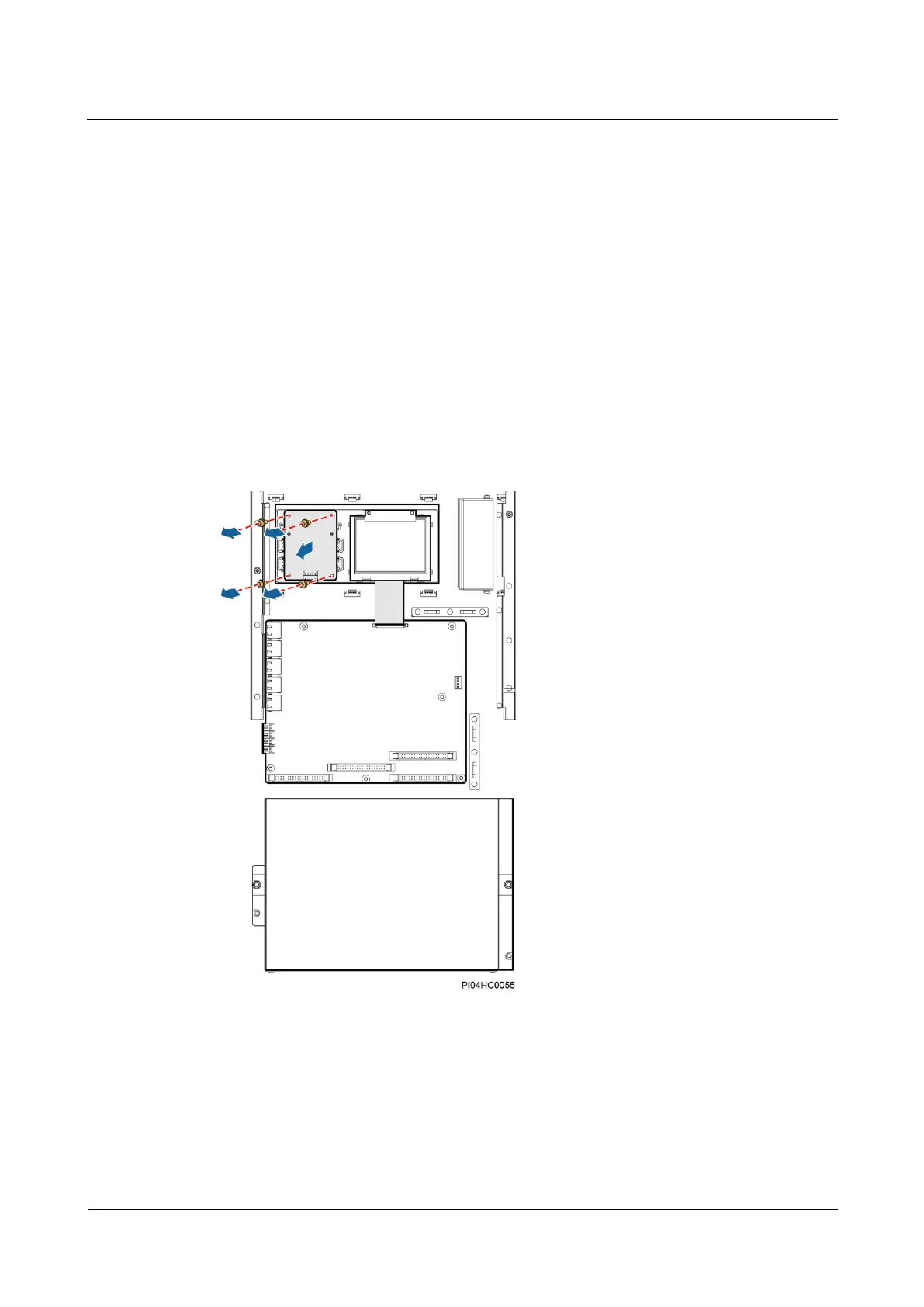
Step 5 Unscrew and remove the button board, as shown in Figure 7-19.
Figure 7-19 Removing a button board
Step 6 Place the new button board in position and tighten the screws.
Step 7 Reconnect the cables to the button board based on the recorded information.
Step 8 Place the cover on the power distribution monitoring unit, and tighten the screws.
Step 9 Reconnect the cables to the RJ45 ports on the power distribution monitoring unit based on the
recorded information.

Related product manuals