EasyManua.ls Logo

Hussmann Q2SSM4S - Page 31

Hussmann Q2SSM4S
44 pages
Print Icon
To Next Page IconTo Next Page
To Next Page IconTo Next Page
To Previous Page IconTo Previous Page
To Previous Page IconTo Previous Page
Loading...
HUSSMANN CORPORATION • BRIDGETON, MO 63044-2483 U.S.A.
Q1, Q2, Q3 Merchandisers
P/N 0562873_M 5-5
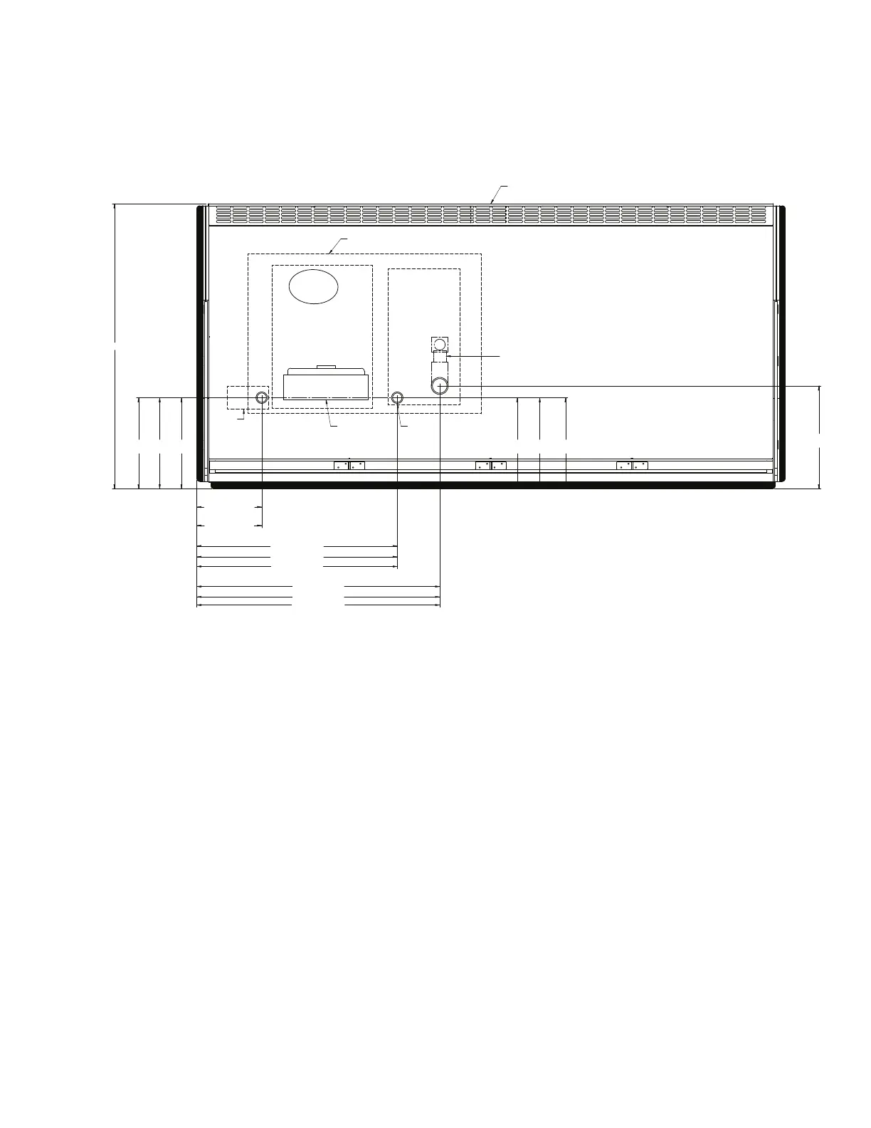
Q2SSM8S A
Compresor
Condenser
Evaporation
Pan
Air Exhaust
Air Exhaust
Waste Outlet
RefrigerationAir Intake
11.020 8FT CASES
6FT CASES
34.020 8FT CASES
41.223 8FT CASES
15.461
8FT
17.461
ALL CASES
48.352
Electrical
Box
9.933 4FT CASES
32.895 6FT CASES
32.145 4FT CASES
38.082 4FT CASES
58.170 6FT CASES
15.208
4FT
15.374
6FT
15.461
8FT
14.208
4FT
14.331
6FT
Dimensions shown as inches and (mm).
General Q1/Q2/Q3SSM4S Q1/Q2/Q3SSM6S Q1/Q2/Q3SSM8S
Case Lenght (Note: includes one pair ends) 50" (127 cm) 74" (188 cm) 98" (249 cm)
Optional End Bumpers (One pair)
Maximum O/S dimension of case back to front
(Note: includes bumper)
Waste Outlet Q1/Q2/Q3SSM4S Q1/Q2/Q3SSM6S Q1/Q2/Q3SSM8S
LH end of case (from outside of End Assembly) 38.08" (96.72 cm) 58.17" (147.75 cm) 41.22" (104.7 cm)
to center of waste outlet
1" (2.54 cm) per Bumper
48.35" (123 cm)

Related product manuals