EasyManua.ls Logo

HydroTherm DYNAMIC/X8 - 4 Parts & Construction Schematics; Dynamic;X8 Dimensions; Dynamic;X8 Parts Schematics

HydroTherm DYNAMIC/X8
44 pages
Print Icon
To Next Page IconTo Next Page
To Next Page IconTo Next Page
To Previous Page IconTo Previous Page
To Previous Page IconTo Previous Page
Loading...
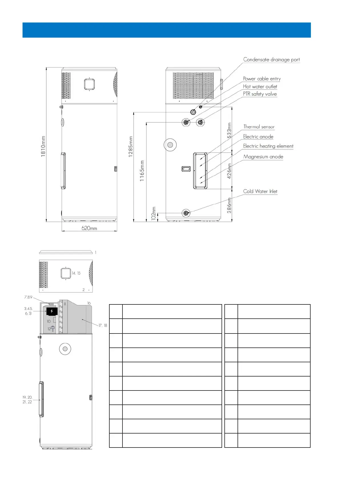
4.1 DYNAMIC/X8 DIMENSIONS
4.2 DYNAMIC/X8 PARTS SCHEMATICS
10
PARTS & CONSTRUCTION SCHEMATICS
1. TOP LID 12. ELECTRONIC TX VALVE
2. UPPER COVER 13. 5V SENSORS
3. ELECTRONIC MAIN BOARD 14. DISPLAY COVER
4. ELECTRIC ANODE TRANSFORMER 15. DISPLAY CONTROLLER
5. FAN CAPACITOR 16. FOAM FAN COVER
6. AC TO DC TRANSFORMER 17. FAN BLADE
7. COMPRESSOR RUN CAPACITOR 18. FAN MOTOR
8. COMPRESSOR STARTER 19. THERMAL SENSOR
9. COMPRESSOR WIRING HARNESS 20. ELECTRONIC ANODE
10. COMPRESSOR 21. ELECTRIC HEATER

Related product manuals