EasyManua.ls Logo

Hypertherm Powermax 1000 - Page 4

Hypertherm Powermax 1000
9 pages
Print Icon
To Next Page IconTo Next Page
To Next Page IconTo Next Page
To Previous Page IconTo Previous Page
To Previous Page IconTo Previous Page
Loading...
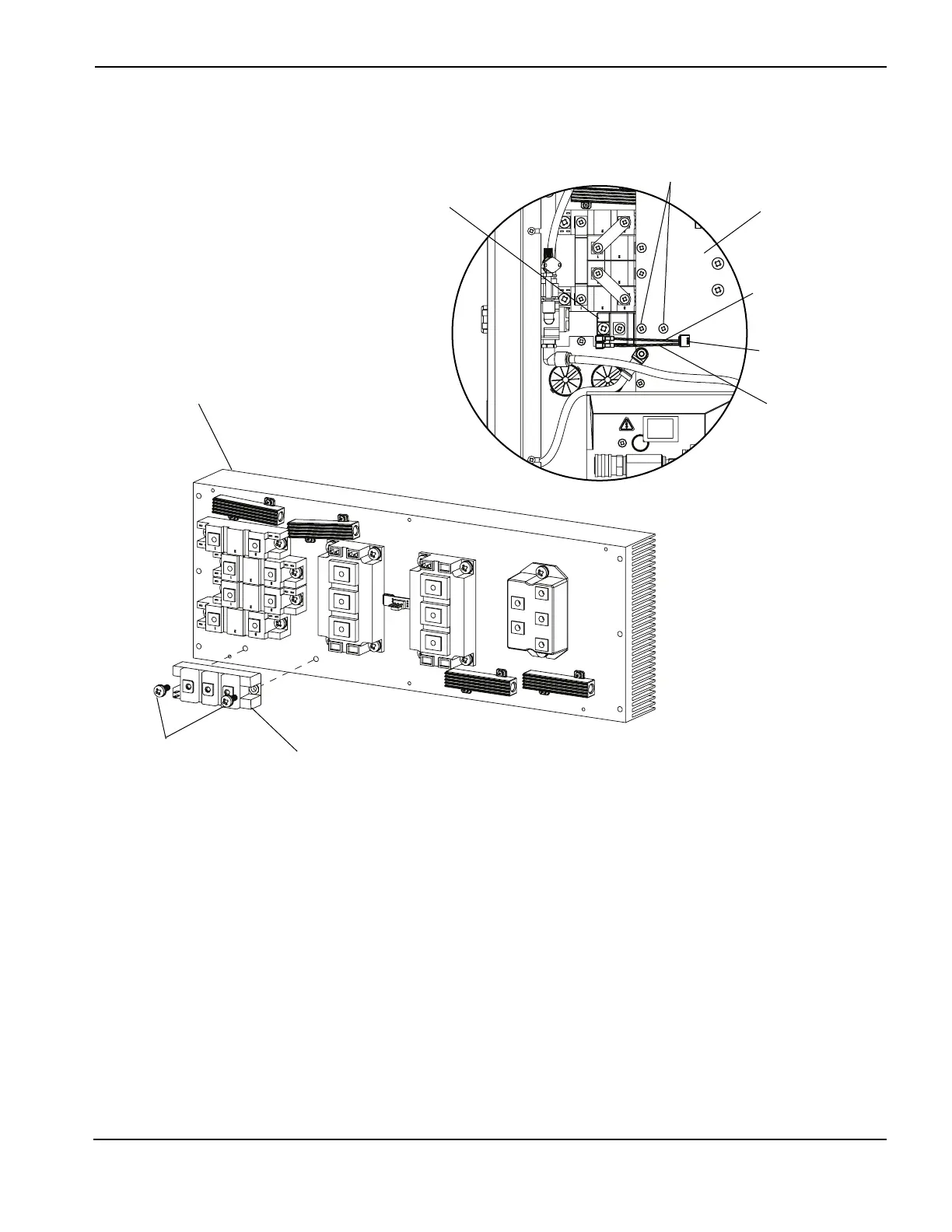
POWERMAX1000/1250/1650 PA IGBT REPLACEMENT
Field Service Bulletin 3
Powermax1650
Gate-drive wire
Powerboard
PA IGBT
Heat sink
PA IGBT
M6 machine screws
M5 machine screws
Red wire
Black wire

Other manuals for Hypertherm Powermax 1000

Related product manuals