EasyManua.ls Logo

Hyundai 20DT-7 - Group 1 Structure and Function

Hyundai 20DT-7
240 pages
Print Icon
To Next Page IconTo Next Page
To Next Page IconTo Next Page
To Previous Page IconTo Previous Page
To Previous Page IconTo Previous Page
Loading...
6-1
GROUP 1 STRUCTURE AND FUNCTION
GROUP 1 STRUCTURE AND FUNCTION
SECTION 6 HYDRAULIC SYSTEM
SECTION 6 HYDRAULIC SYSTEM
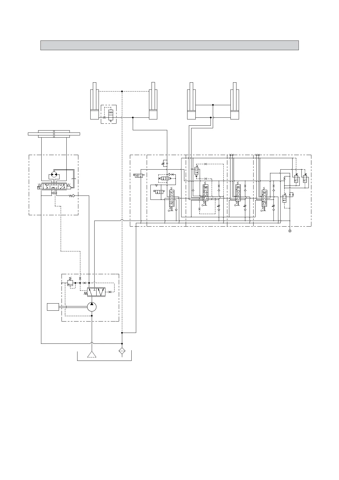
1. HYDRAULIC CIRCUIT
1. HYDRAULIC CIRCUIT
4
3
T
LS
L
R
P
P
T
6
9
2
5
1A
2B
2A
3B
3A
4B
4A
LIFT
TILT AUX1
AUX2
G
8
7
10
T/M
EF
CF
LS
1
20DFHS01S
1 Hydraulic gear pump with Priority valve
2 Main control valve
3 Steering unit
4 Steering cylinder
5 Lift cylinder
6 Tilt cylinder
7 Suction strainer
8 Return filter
9 Down safety valve
10 Hydraulic tank

Related product manuals