EasyManua.ls Logo

IBM System x3550 Type 7978 - System-Board External Connectors

IBM System x3550 Type 7978
190 pages
To Next Page IconTo Next Page
To Next Page IconTo Next Page
To Previous Page IconTo Previous Page
To Previous Page IconTo Previous Page
Loading...
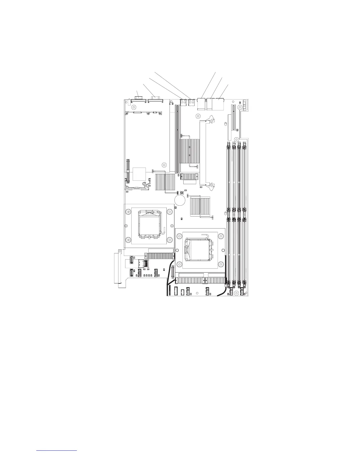
System-board external connectors
The following illustration shows the external connectors on the system board.
Video connector
Serial connector
USB 1 connector
USB 2 connector
Ethernet 1 connector
Ethernet 2 connector
Ethernet connector
Systems- management
14 IBM System x3550 Type 7978 and 1913: Problem Determination and Service Guide

Table of Contents

Related product manuals