EasyManua.ls Logo

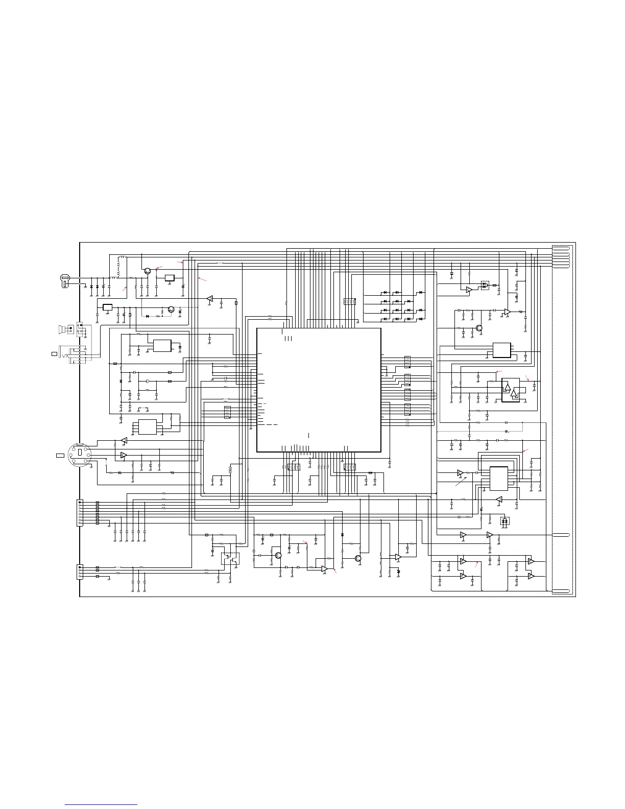
Icom IC-208H - MAIN UNIT VOLTAGE DIAGRAMS

Icom IC-208H
52 pages
Print Icon
To Next Page IconTo Next Page
To Next Page IconTo Next Page
To Previous Page IconTo Previous Page
To Previous Page IconTo Previous Page
Loading...
11-2 MAIN UNIT
DATA
AFOUT
R583
C574 10
C573 1
10k
R605
D521,D522 1SS400 except [EXP]
1SS400 [TPE],[KOR],[EUR-1]
D511-D514,D516-D519
D510 1SS400 [ITR],[TPE],[KOR]
D509 1SS400 [IC-E208]
D508 1SS400 [TPE],[KOR],[AUS]
D507 1SS400 [EUR],[TPE],[EXP],[EUR-1]
5VS_W
5VS
HV
HV_I
8V
8V
8V
HV
5VS
8V
HV
5VS
8V
HV
5VS W5VS_W
5VS 5VS
1
C553
g
f
0.001
C623
0.001
C621
e
d
0.001
C605
0.001
C643
0.1
C551
0.001
C558
0.1
C571
AFO
5VS
b
a
c
R571 100
R578 100
5.6k
R542
1
C537
0.1
C536
10k
R531
0.01
C545
EP521
c
0.001
C662
100k
R534
100k
R533
W546
R507 100k
EP513
EP512
b
a
(2)
UNIT
MAIN
UNR9114J
Q29
RX800
0.001
C620
UNR9114J
Q28
RX400
0.001
C627
UNR9114J
Q27
RXUHF
0.001
C628
UNR9114J
Q26
0.001
C624
0.001
C629
RXVHF
REF_V
220
C567
LA4425A
IC510
BUS LINE2
5VS_W
VCC
8V
HV
HV_I
5VS
5VS_W
8V
HV
HV_I
BUS LINE1
100k
R623
UNR9113J
Q513
UNR9213J
Q514
PLLSW8V
0.001
C647
98_DATA
PLLSW
DATAIN
10
C566
DA221
D524
470k
R601
4.7k
R598
0.001
C561
100k
R595
UNR9213J
Q511
0.001
C562
1200_9600SEL
C547 1
8.2k except [USA]
27k [USA]
R584
UNR9213J
Q509
AFO
REF_V
100k
R589
0.1
C554
MODIN
DATAMOD
0.1
C569
2.2M
R603
2.2M
R600
2.2M
R599
2.2M
R602
MIC_SENS
5.6k except [USA]
8.2k [USA]
P_MOD_MUTE
MICMUTE
14
13
12
11
10
9
87
6
5
4
3
2
1
I/O
O/I
O/I
I/O
CONT.D
CONT.A
VDD
VEE
CONT.C
CONT.B
I/O
O/I
O/I
I/O
BU4066BCFV
IC509
47k
R597
0.0033
C559
100k
R591
0.0033
C557
0.022
C555
4.7k
R585
0.01
C552
DTMF
33k
R635
120k
R632
100k
R633
33k
R634
120k
R631
0.001
C595
0.001
C596
220k
R639
270k
R638
270k
R637
0.001
C593
330k
R636
0.001
C594
8
7
6
54
3
2
1
-
+
+
-
NJM3404AV
IC511
2SC4213
Q512
EP528
47p
C572
4.7
R604
0.1
C570
470
C568
5
4
3
2
1
0.22
C564
0.047
C563
10k
R596
0.47
C560
33k
R593
AF_MUTE
47k
R590
47k
R588
3.3k
R587
0.027
C548
AF_VOL_CK
AF_VOL_DATA
CLK
VCC
VOUT2
VIN2
DATA
GND
VOUT1
VIN1
5
6
7
8
4
3
2
1
M62429FP
IC508
UNR9210J
Q510
CLONE_OUT
CLONE_IN
0.001
C550
15k
R586
MA742
D523
D522
D521
D518
D517
D516
D514
MATORIX_IN4
D510
D513
MATORIX_IN3
D509
D512D508
MATORIX_IN2
OUT4
D519
OUT3
OUT2
D511
OUT1
D507
MATORIX_IN1
DA_DATA
DA_CK
DA_STB
AF_MUTE
PLLSTB2
PLLSTB1
DET_MUTE
AF_VOL_DATA
AF_VOL_CK
MIC_SENS
U_VCO
1200_9600SEL
RX800
RX400
AM
RXUHF
RXVHF
MMUTE
R576 100
R575 100
R574 100
R577 100
R570 100
470k
R569
0.1
C544
TA75S01F
IC507
4
2
5
1
3
+
-
MA8047
D506
10k
R567
330k
R564
12k
R566
120k
R565
2SC4116
Q506
TA75S558F
IC506
10k
R556
22k
R555
MIC_PTT
DTCS_SEL
VTXC
UTXC
100k
R562
2.2k
R561
1SS400
D505
0.001
C539
C587 0.1
15k
R550
0.001
C540
470k
R554
4
2
5
1
3
+
-
1
R552
22k
R549
2.2
C538
100
R568
18k
R547
2SC4116
Q505
4.7k
R540
68k
R539
4.7k
R537
0.039
C533
33k
R538
0.039
C534
EP517
33
C546
1k
R579
150k
R532
EP515
100k
R524
1k
R515
10
C529
R525 4.7k
R516 10k
4.7k
R528
10k
R526
123
654
XP4601
Q504
R513 1
C528 47p
C524 47p
C517 47p
R501 1k
EP511
EP510
EP509
GND
RDATA
TXDATA
CTHV
to CONTROL
unit J3
J503
C526 0.001
C523 0.001
R527 1k
R523 4.7k
C515 0.001
MIC_SEL
R510 1k
C512 0.001
C510 0.001
C506 47p
EP508
EP507
EP506
EP505
EP504
EP503
EP502
EP501
MIC_SEL
98_DATA
P_MOD_MUTE
P_PTT
R541 100
R544 100
100
R546
0.01
C612
0.001
C589
DTMF
DTCS
CLONE_IN
CLONE_OUT
FAN_CT
P_SQL
100
R559
WXALT
TEMP
RSSI
DTCS_IN
SQL
R553 100
R551 100
R558 100
R557 100
W548
MICIN
GND
MIC
MICE
PTT
EXTMIC
MICU/D
8V
J502
to
Microphone
J504
MAIN UNIT (1)
2.2M
R606
10
C575
DATAIN
DETS
P_PTT
AFOUT
P_SQL
0.1
C556
2.2M
R594
2.2M
R592
10
C549
4.7k
R582
PSQL
AFOUT
PTTP
DATAOUT
DATAIN
W510
100k
R581
UNR9213J
Q508
UNR9113J
Q507
47k
R580
5
3
12
4
6
W526
C542 0.1
0.1
C501
5
6
7
8
4
3
2
1
47k
R514
10k
R512
HN58X24128FPI
IC501
SDA
SCL
WP
VCC
VSS
A2
A1
A0
47p
C509
0.01
C505
22p
C520
4p
C514
0.01
C508
12k
R504
1M
R511
CR-520
X501
33p
C511
12k
R506
MA2S077
D503
12k
R503
R529 47k
EP518
2.2
C504
47k
R502
4.7k
R505
5
43
2
1
0.001
C522
0.033
C519
NC
CD
VSS
VDD
OUT
S-80945CLMC-G7F
IC502
R530 10k
MIC_PTT
TX_MUTE
R520 100
W513
VRSTB
R518 1k
UNR9213J
Q502
0.001
C608
EP519
R517 100
0.1
C535
100k
R536
NTCG20
R535
WN_SEL
OUT4
OUT3
OUT2
OUT1
PLLCK
PLLDATA
MATORIX_IN4
MATORIX_IN3
MATORIX_IN2
MATORIX_IN1
UNLK
PLLSW
V_VCO
VCO_SHIFT
R5CTRL
MICMUTE
100
R563
5VS_W
100
R543
R548 150k
R545 100
J506
CHASSIS
SP1
SP
-
+
J505
10
C532
2SA1588
Q503
4.7k
R522
1k
R521
1SS400
D504
EP514
C525 10
C521 0.1
C507 0.47
2
G
3
O
1
I
TA7805F
IC503
TA7808F
IC504
L63 ZBFS5101-PT
ZBFS5101-PT
L62
ZBFS5101-PT
L61
8V
VCC
C531 10
2
3
1
G
OI
C527 0.47
W509
C516 0.001
C513 0.1
R509 1.5k
HV
HV_I
2SB1182
Q501
47k
R508
ZBFS5101-PT
L60
C503 0.001
C502 2200
D502 DSA3A1
D501 RD20E
HV
GND
W501
RESO
P86/IRQ5/SCK1
P85/IRQ4/RXD1
P84/IRQ3/TXDI
P83
P82
P81
P80
VSS
PB0/D0
PB1/D1
P37/D15
P36/D14
P35/D13
P34/D12
P33/D11
P32/D10
P31/D9
P30/D8
PB2/D2
PB3/D3
P10/A0
P11/A1
P12/A2
P13/A3
P14/A4
P15/A5
P16/A6
P17/A7
VSS
VSS
PB4/D4
PB5/D5
P20/A8
P21/A9
P22/A10
P23/A11
P24/A12
P25/A13
P26/A14
P27/A15
VCC1
PB6/D6
PB7/D7
P47/PWX1
P46/PWX0
P45/TMRI1
P44/TMO1
P43/TMCI1
P42/TMRIO/SCK2
IRRXD/RXD2/TMO0/P41
IRTXD/TXD2/IMCIO/P40
KIN8/CIN8/A16/PA0
KIN9/CIN9/A17/PA1
AVSS
AN7/P77/DA1
AN6/P76/DA0
AN5/P75
AN4/P74
AN3/P73
AN2/P72
AN1/P71
AN0/P70
AVCC
AVREF
KIN7CIN7/IRQ7/P67
KIN6CIN6/FTOB/P66
KIN5CIN5/FTID/P65
KIN4CIN4/FTIC/P64
KIN10CIN10/A18/PA2
KIN11CIN11/A19/PA3
KIN3CIN3/FTIB/P63
TMIY/KIN2/CIN2/FTIA/P62
KIN1CIN1/FTOA/P61
KIN0CIN0/FTCI/P60
RD/P93
ADTRG/IRQ2/LWR/P90
IRQ1/P91
IRQ0/P92
KIN12/CIN12/A20/PA4
KIN13/CIN13/A21/PA5
HWR/P94
IOS/AS/P95
EXCL/P96
WAIT/P97
VSS
TXD0/P50
RXD0/P51
SCK0/P52
KIN14/CIN14/A22/PA6
KIN15/CIN15/A23/PA7
VCC2(VCL)
STBY
NMI
MD0
MD1
VCC1
EXTAL
XTAL
RES
100
99
98
97
96
95
94
93
92
91
90
89
88
87
86
85
84
83
82
81
80
79
78
77
76
75
74
73
72
71
70
69
68
67
66
65
64
63
62
61
60
59
58
57
56
55
54
53
52
51
50
49
48
47
46
45
44
43
42
41
40
39
38
37
36
35
34
33
32
31
30
29
28
27
26
25
24
23
22
21
20
19
18
17
16
15
14
13
12
11
10
9
8
7
6
5
4
3
2
1
HD6432143SA70FA [USA]
HD6432143SA69FA except [USA]
IC505
13.8V
13.7V
7.9V
TX: 4.8V
RX: 4.8V
4.3V
4.3V
TX: 0V
RX: 4.4V
TX: 2.0V
RX: 1.5V
4.8V
TX: 4.8V
RX: 4.8V
11 - 2

Other manuals for Icom IC-208H

Related product manuals