EasyManua.ls Logo

Ideal Boilers Esprit 2 - Page 16

Ideal Boilers Esprit 2
72 pages
Print Icon
To Next Page IconTo Next Page
To Next Page IconTo Next Page
To Previous Page IconTo Previous Page
To Previous Page IconTo Previous Page
Loading...
16
INSTALLATION
ESPRIT 2 - Installation and Servicing
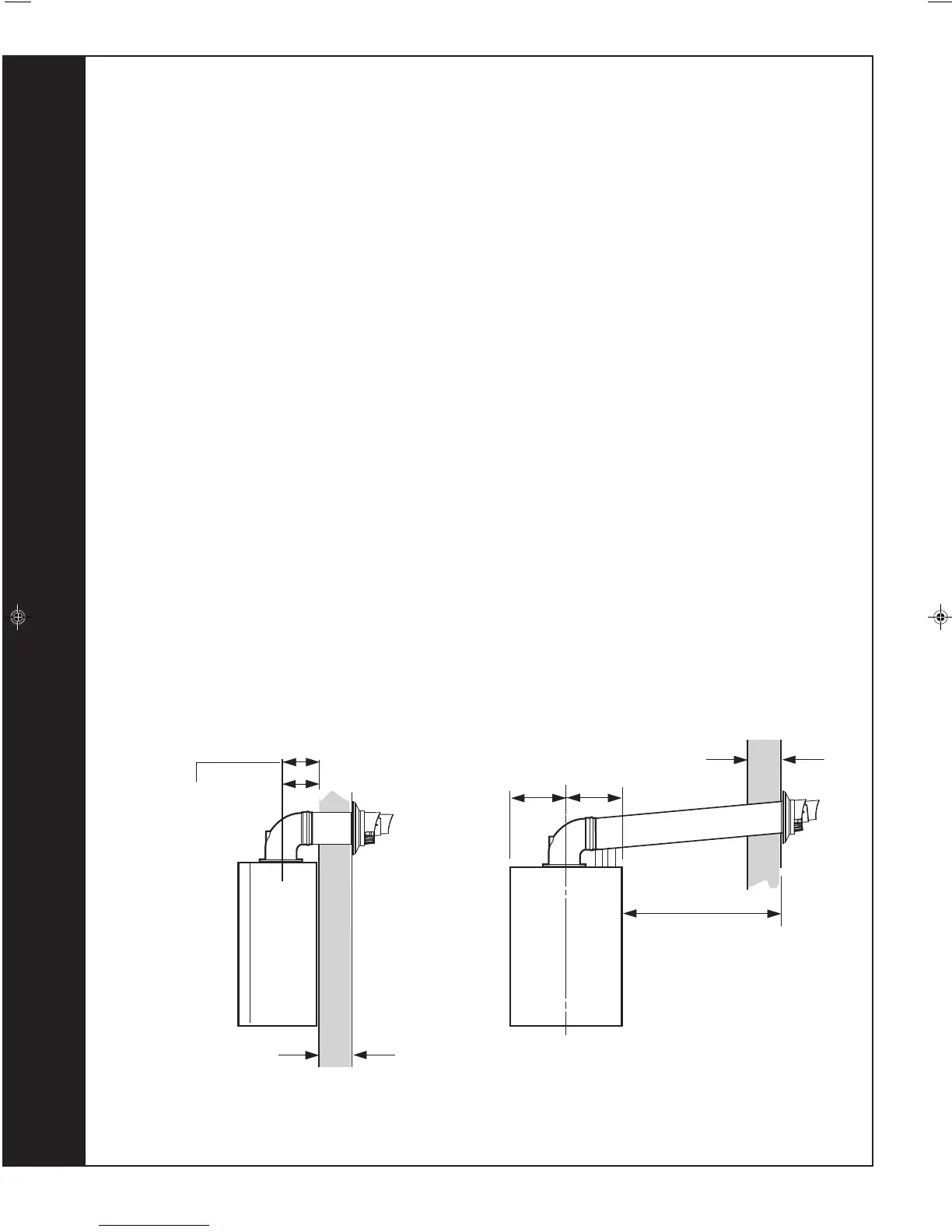
FLUE OUTLET
Wall Thickness X
160 mm
160 + S = 193mm
nm8943
FLUE KITS
Pack B - supplied as standard
Pack D - optional extension kit for side flue or rear flue outlet
SCREW KIT - Optional kit for mechanical fixing of flue joints
Finishing Kit - Supplied as an optional extra
Refer to 'Flue Extension Ducts'
IMPORTANT. The boiler MUST be installed in a vertical position
Dimension X - Wall thickness.
Dimension L - Wall thickness plus boiler spacing.
Dimension S - Stand-off frame depth = 33mm
12
DETERMINING THE FLUE LENGTH AND FLUE PACKS REQUIRED
Note.
MAXIMUM FLUE LENGTHS:
24 & 30 - 6M (HORIZONTAL FLUE)
35 - 3M (HORIZONTAL FLUE)
24, 30 & 35 - 7.5M (ROOF FLUE)
24, 30 & 35 - 5M PRIMARY AND 17M SECONDARY IS A TYPICAL MAX. FLUE LENGTH.
(For alternative details refer to Powered Vertical Instructions)
90
O
ELBOW KIT 60/100 (EQUIVALENT FLUE LENGTH RESISTANCE = 1M)
45
O
ELBOW KIT 60/100 (EQUIVALENT FLUE LENGTH RESISTANCE = 0.6M)
MINIMUM HORIZONTAL FLUE LENGTHS - TELESCOPIC TERMINAL = 370MM
(Centre Line of turret to outside of wall terminal) - ONE PIECE TERMINAL = 285MM
195mm
195mm
Wall Thickness X
Side flue length L
SIDE FLUE
REAR FLUE
continued . . . . .
206091-1.pmd 26/05/2010, 16:0816

Related product manuals