EasyManua.ls Logo

Ideal Boilers LOGIC COMBI C30 - Boiler Dimensions, Services & Clearances

Ideal Boilers LOGIC COMBI C30
72 pages
Print Icon
To Next Page IconTo Next Page
To Next Page IconTo Next Page
To Previous Page IconTo Previous Page
To Previous Page IconTo Previous Page
Loading...
14
Installation and Servicing
SECTION 1 - GENERAL
Underside View - Dimensions to Wall
W A L L
W A L L
395
2.5
2.5
from case
700
Side flue
dim. A
CH FLOW
DATA PLATE
DHW OUTLET
COND. DRAIN
GAS INLET
Centre line
of boiler
DHW INLET
CH RETURN
PRV
43.5 65
28.5 28.5
60.6 75 37.556.4
CH
Circuit
Drain
CH
Flow
Gas DHW
Inlet
DHW
Outlet
Filling Loop
CH
Return
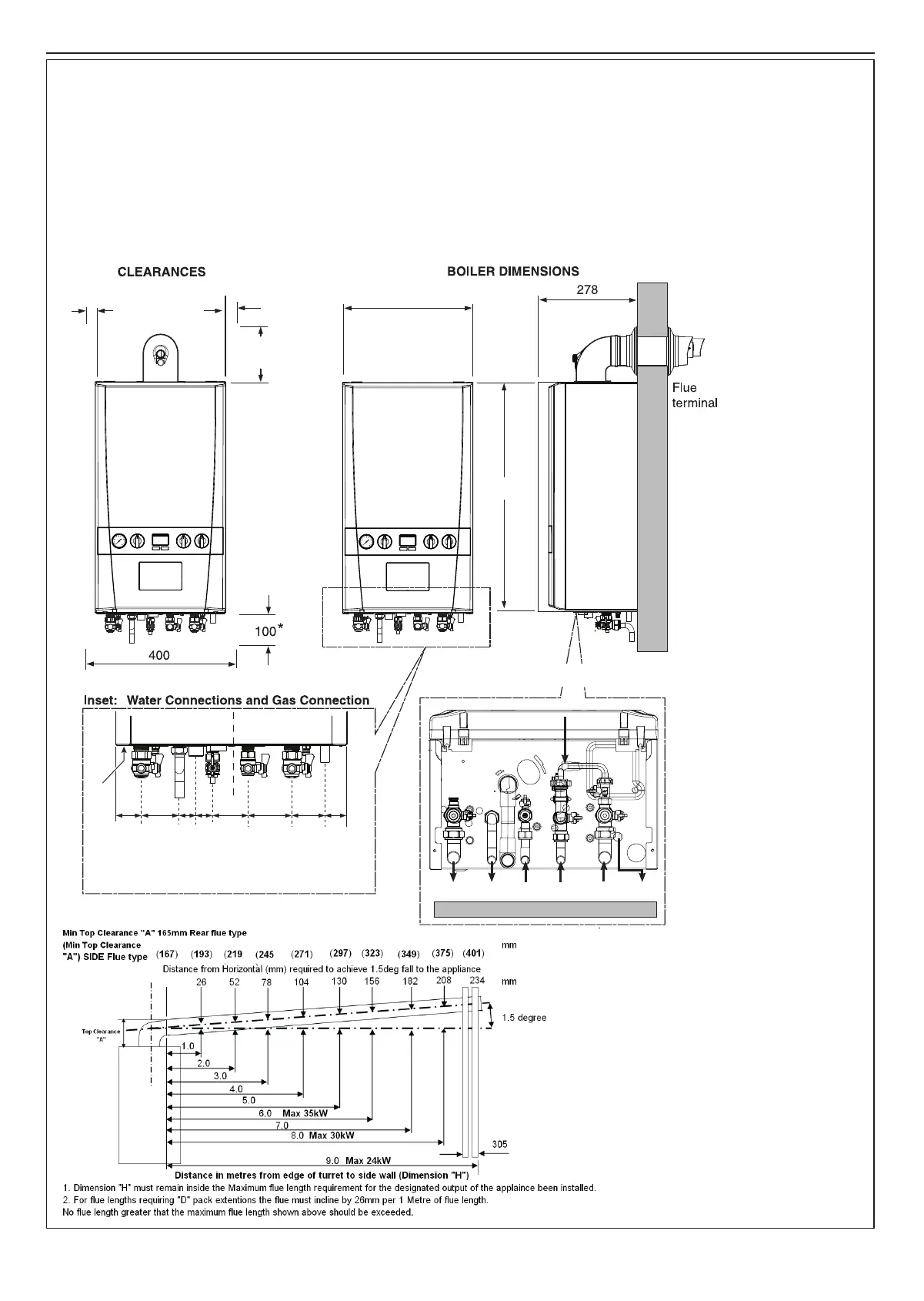
1.16 BOILER DIMENSIONS, SERVICES & CLEARANCES
The boiler connections are made on the boiler connection tails.
Refer to Section 2.16.
The following minimum clearances must be maintained for
operation and servicing.
Additional space will be required for installation, depending upon
site conditions.
Side and Rear Flue
a.
Provided that the ue hole is cut accurately, e.g. with a core
drill, the ue can be installed from inside the building where
wall thicknesses do not exceed 600mm. Where the space into
which the boiler is going to be installed is less than the length
of ue required the ue must be tted from the outside.
Installation from inside ONLY
b. If a core boring tool is to be used inside the building the
space in which the boiler is to be installed must be at least
wide enough to accommodate the tool.
Front clearance
The minimum front
clearance when built in to
a cupboard is 5mm from
the cupboard door but
450mm overall clearance
is still required, with the
cupboard door open, to
allow for servicing.
* Bottom clearance
Bottom clearance after
installation can be
reduced to 5mm. This
must be obtained with
an easily removable
panel to provide the
100mm clearance
required for servicing.

Table of Contents

Related product manuals