EasyManua.ls Logo

Ideal Boilers LOGIC COMBI C30 - Page 64

Ideal Boilers LOGIC COMBI C30
72 pages
Print Icon
To Next Page IconTo Next Page
To Next Page IconTo Next Page
To Previous Page IconTo Previous Page
To Previous Page IconTo Previous Page
Loading...
* All installations in England and Wales must be to Local Authority Building Control (LABC) either directly or through a
Competent Persons Scheme. A Building Regulations Compliance
will then be issued to the customer.
www.centralheating.co.uk
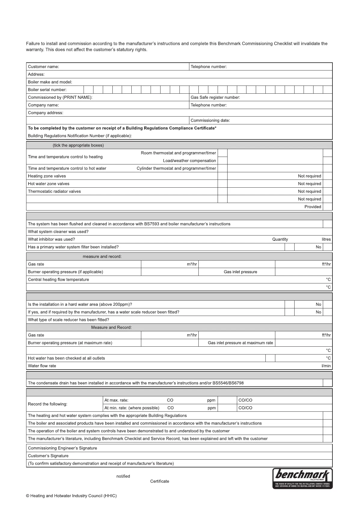
This Commissioning Checklist is to be completed in full by the competent person who commissioned the boiler as a means of demonstrating
compliance with the appropriate Building Regulations and then handed to the customer to keep for future reference.
GAS BOILER SYSTEM COMMISSIONING CHECKLIST
CONTROLS
Programmable room thermostat
Optimum start control
Combination Boiler
Fitted
Fitted
Fitted
Automatic bypass to system Fitted
Boiler interlock
ALL SYSTEMS
Yes
Yes
CENTRAL HEATING MODE
OR
mbar OR mbar
Central heating return temperature
COMBINATION BOILERS ONLY
Yes
Yes
DOMESTIC HOT WATER MODE
OR
mbar OR mbar
Cold water inlet temperature
Yes Temperature
CONDENSING BOILERS ONLY
Yes
ALL INSTALLATIONS
AND
²
Ratio
AND
²
Ratio
Yes
Yes
Yes
Yes
www.centralheating.co.uk

Table of Contents

Related product manuals