EasyManua.ls Logo

Ideal Boilers Minimizer FF 50 - Pump; System Diagrams

Ideal Boilers Minimizer FF 50
48 pages
Print Icon
To Next Page IconTo Next Page
To Next Page IconTo Next Page
To Previous Page IconTo Previous Page
To Previous Page IconTo Previous Page
Loading...
7
Minimiser - Installation
GENERAL
all dimensions in mm (in.)
3
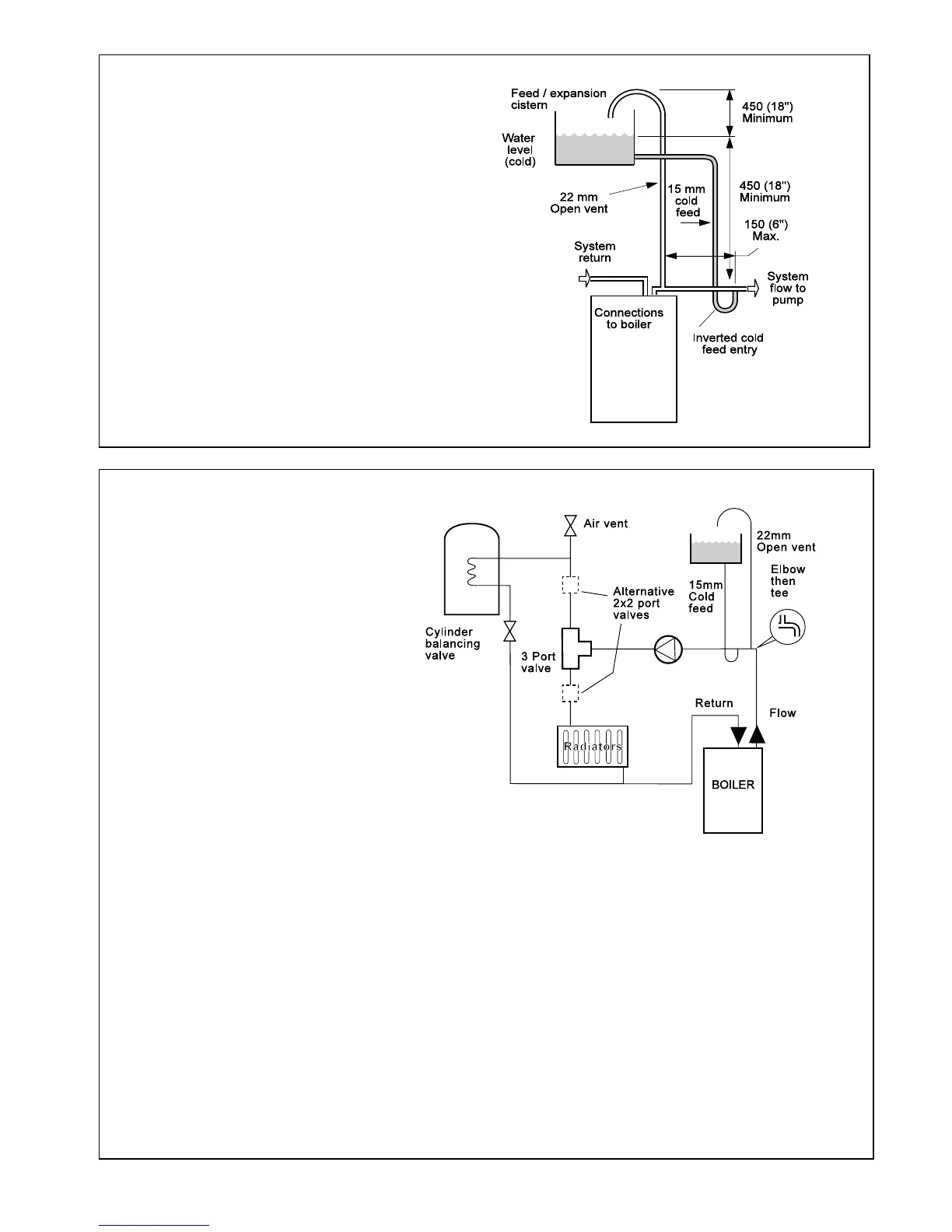
OPEN VENT SYSTEM REQUIREMENTS
4
SCHEMATIC PIPEWORK AND SYSTEM BALANCING
The system should be vented directly off the boiler flow pipe, as
close to the boiler as possible. The cold feed entry should be
inverted and MUST be positioned between the pump and the vent,
and not more than 150mm (6") away from the vent connection.
Note. Combined feed and vent pipes may also be fitted.
There should be a minimum height, 450mm (18"), of open vent
above the cistern water level. If this is not possible refer to
Frame 5. The vertical distance between the highest point of the
system and the feed/expansion cistern water level MUST not be
less than 450 mm (18"). The pump must be fitted on the flow side
of the boiler.
The boiler does not normally need a
bypass but at least some radiators on the
heating circuit, of load at least 60% of the
boiler output, must be provided with twin
lockshield valves so that this minimum
heating load is always available (see
footnote re. thermostatic radiator valves).
Balancing
1. Set the programmer to ON for both
CH and HW. Turn the cylinder
thermostat down. Close the manual or
thermostatic valves on all radiators,
leaving the twin lockshield valves (on
the radiators referred to above) in the
open position. Turn up the room
thermostat and adjust these lockshield
valves to give boiler flow and return
temperatures not more than 15°C
apart. These valves should now be left
as set.
Return & flow connections
FF 30 - 60 = 22 mm
FF 70 - 80 = 28 mm
Thermostatic Radiator Valves
Caradon Ideal Ltd. support the recommendations made in BS. 5449,
and by leading manufacturers of domestic heating controls, that
heating systems utilising the thermostatic radiator valve control of
temperature in individual rooms shall also be fitted with a room
thermostat, controlling the temperature in a space served by radiators
not fitted with such a valve.
Such an arrangement will provide for potentially more efficient control
of the environment and will also avoid the continuous running of the
circulation pump during programmed heating ON periods - thus
saving electrical energy.
It is, therefore, strongly recommended that, when thermostatic
radiator valves are used, space heating temperature control over a
living/dining area or a hallway having a heating requirement of at
least 60% of the boiler heat output, is achieved using a room
thermostat whilst other rooms are individually controlled by
thermostatic radiator valves.
A suitable pump is a domestic circulator capable of providing a maximum 11°C
(20°F) temperature differential across the boiler with the whole of the heating
circuit open (e.g. Grundfos UPS 15/50, 15/60 or equivalent). With the minimum
flow circuit allowed by the controls the differential must not exceed 15 °C.
The vertical distance between the pump and feed/expansion cistern MUST
comply with the pump manufacturer's minimum requirements, to avoid
cavitation. Should these conditions not apply either lower the pump position or
raise the cistern above the minimum requirement specified by Caradon Ideal
Ltd. The isolation valves should be fitted as close to the pump as possible.
2. Open all manual or thermostatic radiator
valves and adjust the lockshield valves on
remaining radiators to give around 11°C
temperature drop at each radiator.
3. Turn up the cylinder thermostat and adjust the
cylinder balancing valve so that the cylinder
achieves a maximum flow consistent with
adequate flow to the radiators. Check that with
only the domestic hot water loop in circuit a
differential temperature of 15 °C across the
boiler is not exceeded.
4. Adjust room and cylinder thermostats and
programmer to NORMAL settings.

Related product manuals