EasyManua.ls Logo

IDEAL Solar Thermal

IDEAL Solar Thermal
68 pages
To Next Page IconTo Next Page
To Next Page IconTo Next Page
To Previous Page IconTo Previous Page
To Previous Page IconTo Previous Page
Loading...
32
INSTALLATION
Solar Thermal - Installation and Servicing
INSTALLATION
27
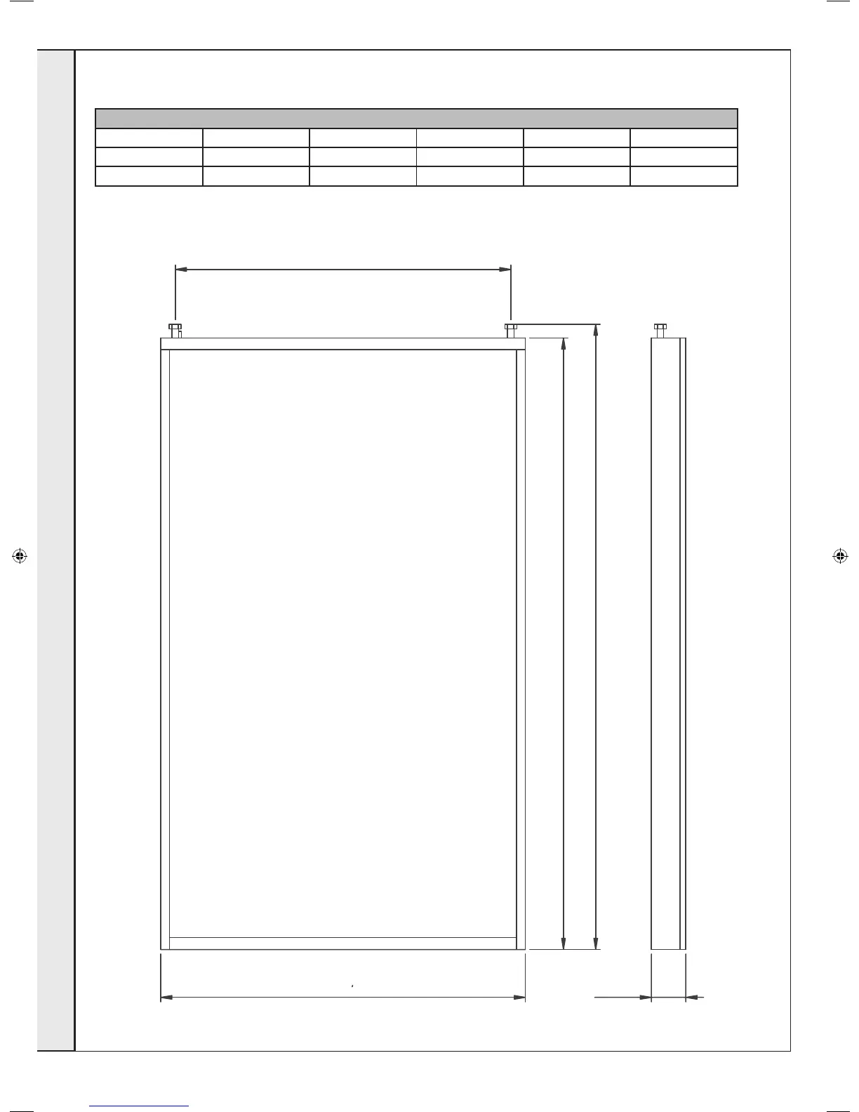
INFORMATION ABOUT THE COLLECTOR (TS 8001)
Technical Data
Gross area m
2
2,52 Weight kg 47
Net ara m
2
2,32 Contents 1 1, 7
Aperture m
2
2,28 Max. Pressure bar 10
1130
2058
2104
1227 105
207786-2.indd 32 16/02/2012 11:26:13