EasyManua.ls Logo

IDEC FL1E-H12RCA - Analog Math Error Detection

IDEC FL1E-H12RCA
356 pages
Print Icon
To Next Page IconTo Next Page
To Next Page IconTo Next Page
To Previous Page IconTo Previous Page
To Previous Page IconTo Previous Page
Loading...
IDEC SmartRelay functions
230 IDEC SmartRelay Manual
4.4.31 Analog math error detection
Short description
The analog math error detection block sets an output if an
err
or has occurred in the referenced analog math function
block.
Parameter MathBN
The value for the MathBN parameter references be the block
number
of an already-programmed analog math function
block.
Functional description
The analog math error detection bl
ock sets the output when
the referenced analog math function block has an error. You
can program the function to set the output on a zero division
error, an overflow error, or when either type of error occurs.
If AutoRst is set, the output is reset prior to the next
execution of the function block. If AutoRst is not set, then
whenever the output is set it remains set until the analog
math error detection block is reset with the R parameter. This
way, even if the error subsequently clears, the circuit
program still has knowledge that an error did occur at some
point.
In any scan cycle, if the referenced analog math function
block
executes before the analog math error detection
function block, the error is detected in the same scan cycle.
if the referenced analog math function block executes after
the analog math error detection function block, the error is
detected in the next scan cycle
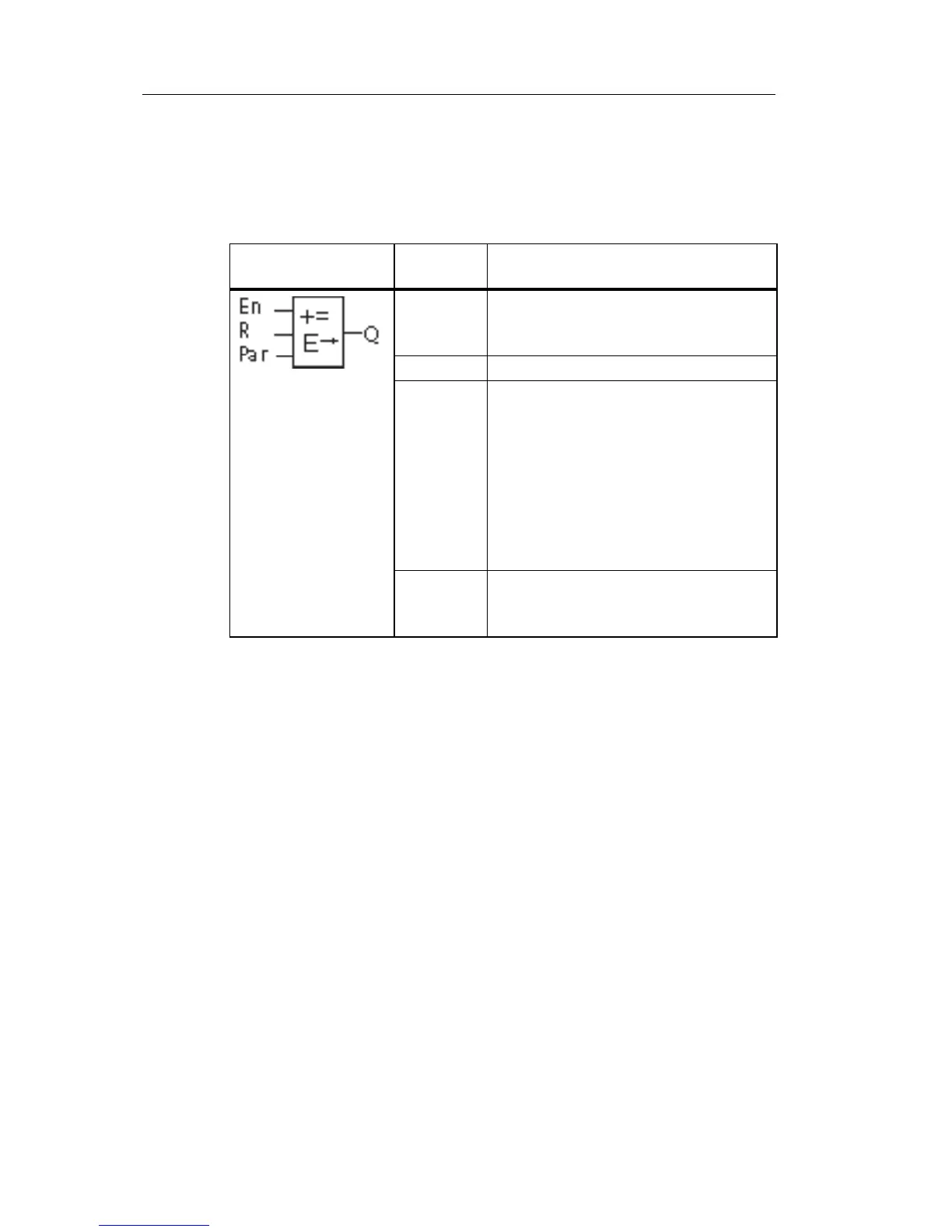
Symbol in IDEC
SmartRelay
Wiring Description
Input En A change in the status from 0 to 1 at
input En (Enable) enables the analog
math error detection block.
Input R A signal at input R resets the output.
Parameter MathBN: block number of an analog
math instruction
Err: ZD: Divide by 0 error
OF: Overflow error
ZD/OF: (Divide by 0 error) OR
(Overflow error)
AutoRst: Reset the output before the
next execution of the analog math
error function block. Y = yes; N = no
Output Q Q is set high if the error to detect
occurred in the last execution
referenced analog math function block
Phone: 800.894.0412 - Fax: 888.723.4773 - Web: www.clrwtr.com - Email: info@clrwtr.com

Table of Contents

Related product manuals