EasyManua.ls Logo

IDEC FL1E-H12RCA - Previous Solution

IDEC FL1E-H12RCA
356 pages
Print Icon
To Next Page IconTo Next Page
To Next Page IconTo Next Page
To Previous Page IconTo Previous Page
To Previous Page IconTo Previous Page
Loading...
Applications
282 IDEC SmartRelay Manual
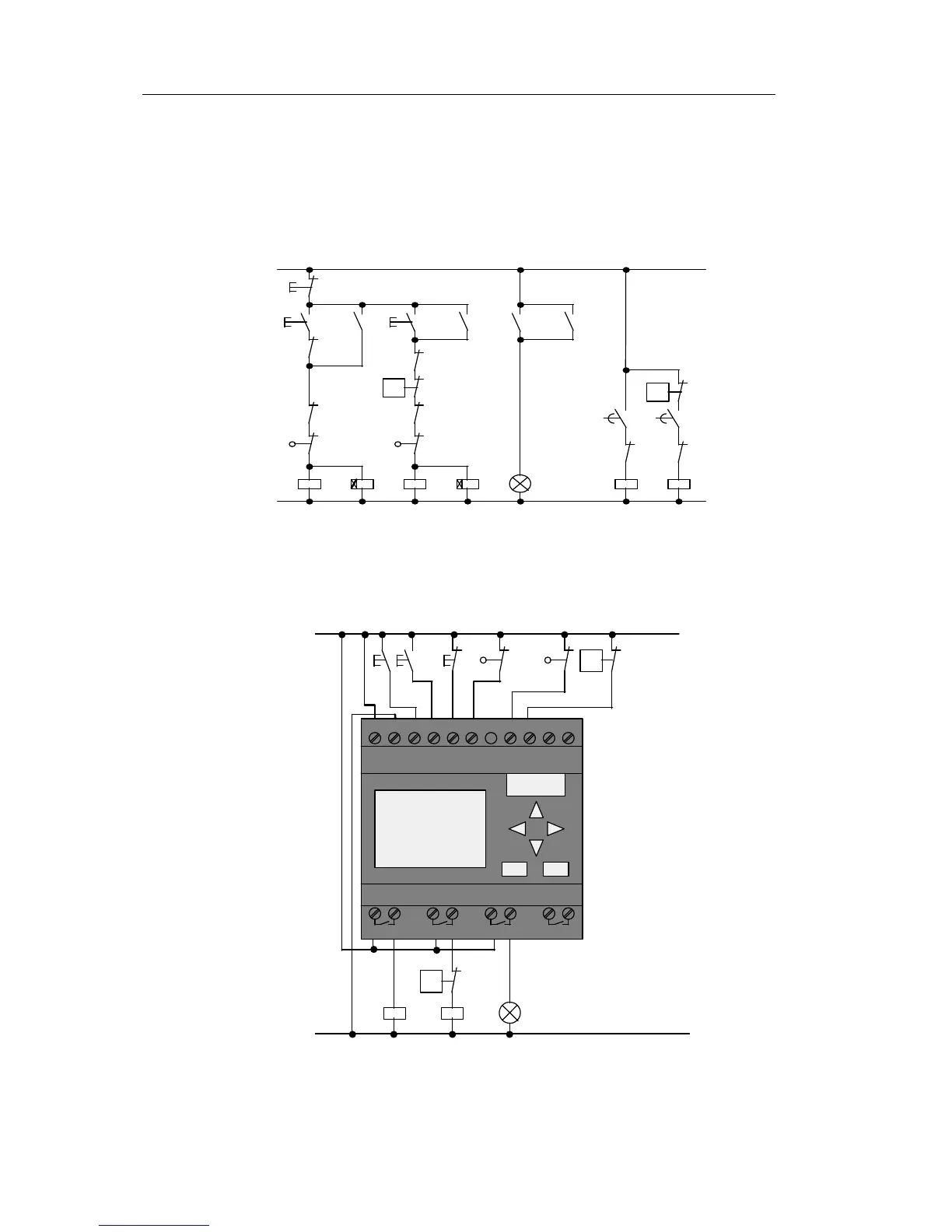
8.4.2 Previous solution
Various control systems are used to operate automatic
gates. The circuit diagram below shows one of these
options.
K1 K5
K3
S1
S0
K3K2
L1
N
K1
H1
K4
S5 p
>
K6
K6
K1
S2
S2 K3
K2 K4
K5
S5 p
>
S1
K3 K1
S4S3
Open
Close
Indicator lamp
Open Close
Auxiliary circuit
Wiring of a gate control system with FL1E-H12RCC
L1 N I4 I5 I6 I7 I8
Q1 Q2 Q3 Q4
K1 K3
S4S3
L1
N
S1
S2
S0
S5
p
>
S5
p
>
H1
I1 I2 I3
1 2 1 2 1 2 1 2
Open
Close
Indicator lamp
Phone: 800.894.0412 - Fax: 888.723.4773 - Web: www.clrwtr.com - Email: info@clrwtr.com

Table of Contents

Related product manuals