EasyManua.ls Logo

Ilco Orion ECODRILL 2000 C/E - Electrical Circuit Diagram

Ilco Orion ECODRILL 2000 C/E
36 pages
Print Icon
To Next Page IconTo Next Page
To Next Page IconTo Next Page
To Previous Page IconTo Previous Page
To Previous Page IconTo Previous Page
Loading...
ECODRILL 2000 C/E Operating manual - English
12
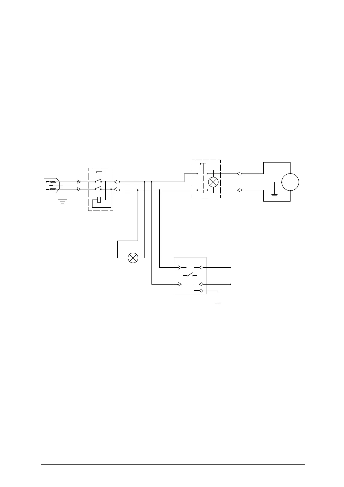
3.3 Electrical circuit
The main parts of the electrical and electronic circuit on the ECODRILL 2000 C/E are listed below:
1) Plug with fuses
2) magnetic master switch
3) Motor switch
4) Motor
5) Lamp
6) Electronic board
7) Tracer contact
8) Cutter contact
9) Fuse 3,15A rapid (230V-100V)
Fig. 6
1
2
3
4
1
9
4
2
3
5
6
7
8
light blue
brown
light blue
brown
light blue
brown
light blue
brwon
light blue
brown
blue
M

Related product manuals