EasyManua.ls Logo

Ilco Orion ECODRILL 2000 C/E - Replacing the Right-hand Jaw

Ilco Orion ECODRILL 2000 C/E
36 pages
Print Icon
To Next Page IconTo Next Page
To Next Page IconTo Next Page
To Previous Page IconTo Previous Page
To Previous Page IconTo Previous Page
Loading...
Operating manual - English ECODRILL 2000 C/E
29
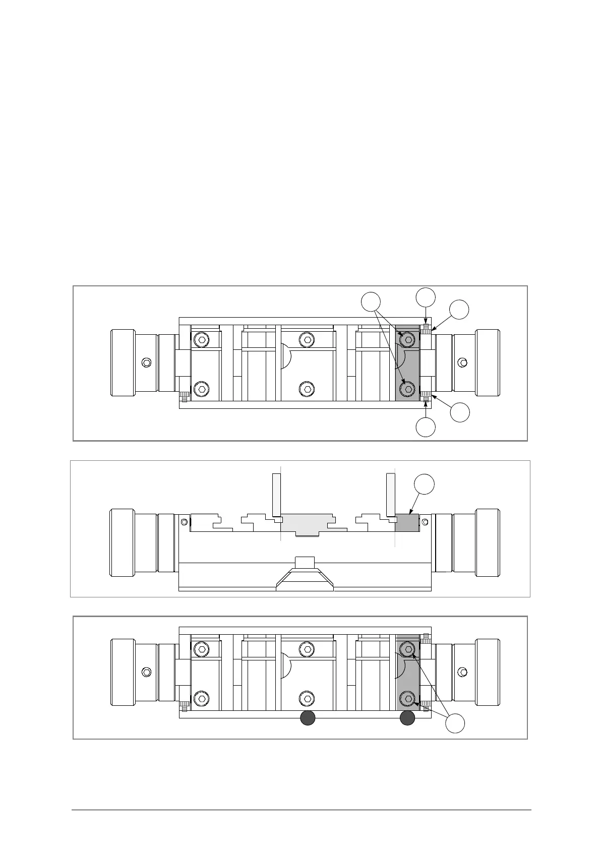
8.6.2 Replacing the right-hand jaw
1) Loosen the grub screw (Z1) and remove the jaw (Z) (fig. 30) (fig. 31).
2) install the new jaw, placing it well up against the side and aligning the front with the bar provided, then
tighten the 2 screws (Z1).
3) check alignment by fitting the 2 gauging pins into the spindles.
4) lower the lever and by means of the carriage lever (C) (fig.4, page 10) take the pins into contact with
the inside of the right-hand jaw and the central jaw (fig. 31).
5) if the distance between the two jaws is not correct (no contact with one of the sides) adjust the position
of the right-hand jaw:
a) loosen the 2 screws (Z1) and the 2 grub screws (Z2) then register the 2 grub screws (Z3)
until they are properly gauged;
b) lock the 2 screws (Z1) and the 2 grub screws (Z2).
6) check the front alignment: lower the lever (I) and take the pins into contact with the front side of the
right-hand jaw and the central jaw (fig. 32).
7) if the alignment is not correct (no contact with one of the sides) adjust the right-hand jaw:
a) loosen the 2 screws (Z1) and move manually the right-hand jaw until they are properly gau-
ged;
b) lock the 2 screws (Z1).
Fig. 30
Fig. 31
Fig. 32
Z1
Z2
Z3
Z3
Z2
Z
Z1

Related product manuals