EasyManua.ls Logo

Immergas DIM 2 ZONE ERP - Page 23

Immergas DIM 2 ZONE ERP
32 pages
Print Icon
To Next Page IconTo Next Page
To Next Page IconTo Next Page
To Previous Page IconTo Previous Page
To Previous Page IconTo Previous Page
Loading...
23
3-10
INSTALLERUSER
MAINTENANCE TECHNICIAN
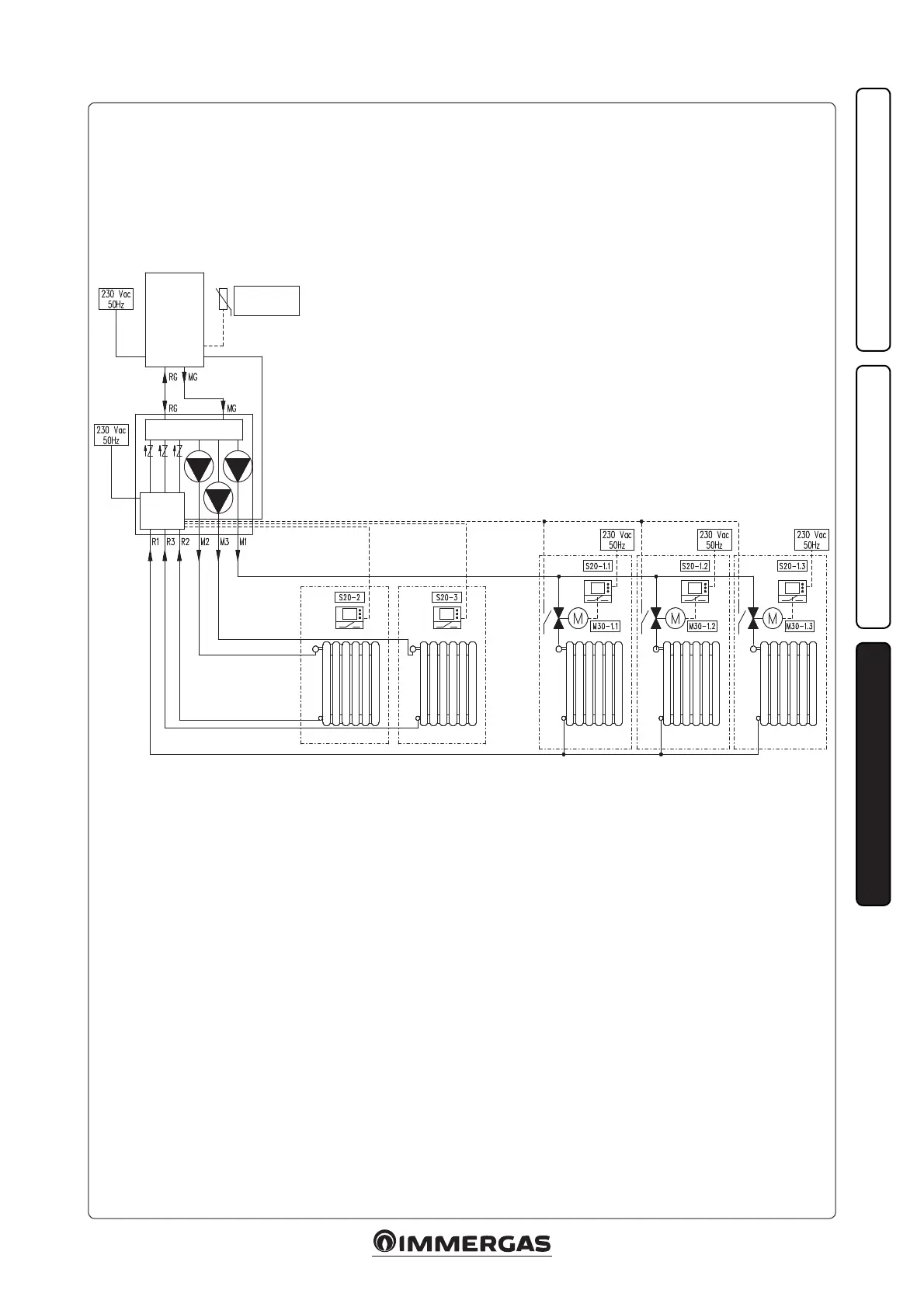
Example of hydraulic diagram for dividing zone 1 DIM into three portions.
Key
M30-1.1 - Portion valve 1 of zone 1
M30-1.2 - Portion valve 2 of zone 1
M30-1.3 - Portion valve 3 of zone 1
S20-2 - Room thermostat zone 2
S20-3 - Room thermostat zone 3
S20-1.1 - Portion 1 room thermostat of zone 1
S20-1.2 - Portion 2 room thermostat of zone 1
S20-1.3 - Portion 3 room thermostat of zone 1
BOILER
1st DIM V2 3 ZONES
Zone 2 Zone 3
Portion 1 of
zone 1
Portion 2 of
zone 1
Portion 3 of
zone 1
External probe
(optional)
Zones
control unit
DIM V2