EasyManua.ls Logo

Immergas DIM 2 ZONE ERP - Page 9

Immergas DIM 2 ZONE ERP
32 pages
Print Icon
To Next Page IconTo Next Page
To Next Page IconTo Next Page
To Previous Page IconTo Previous Page
To Previous Page IconTo Previous Page
Loading...
9
1-5 1-6
INSTALLERUSER
MAINTENANCE TECHNICIAN
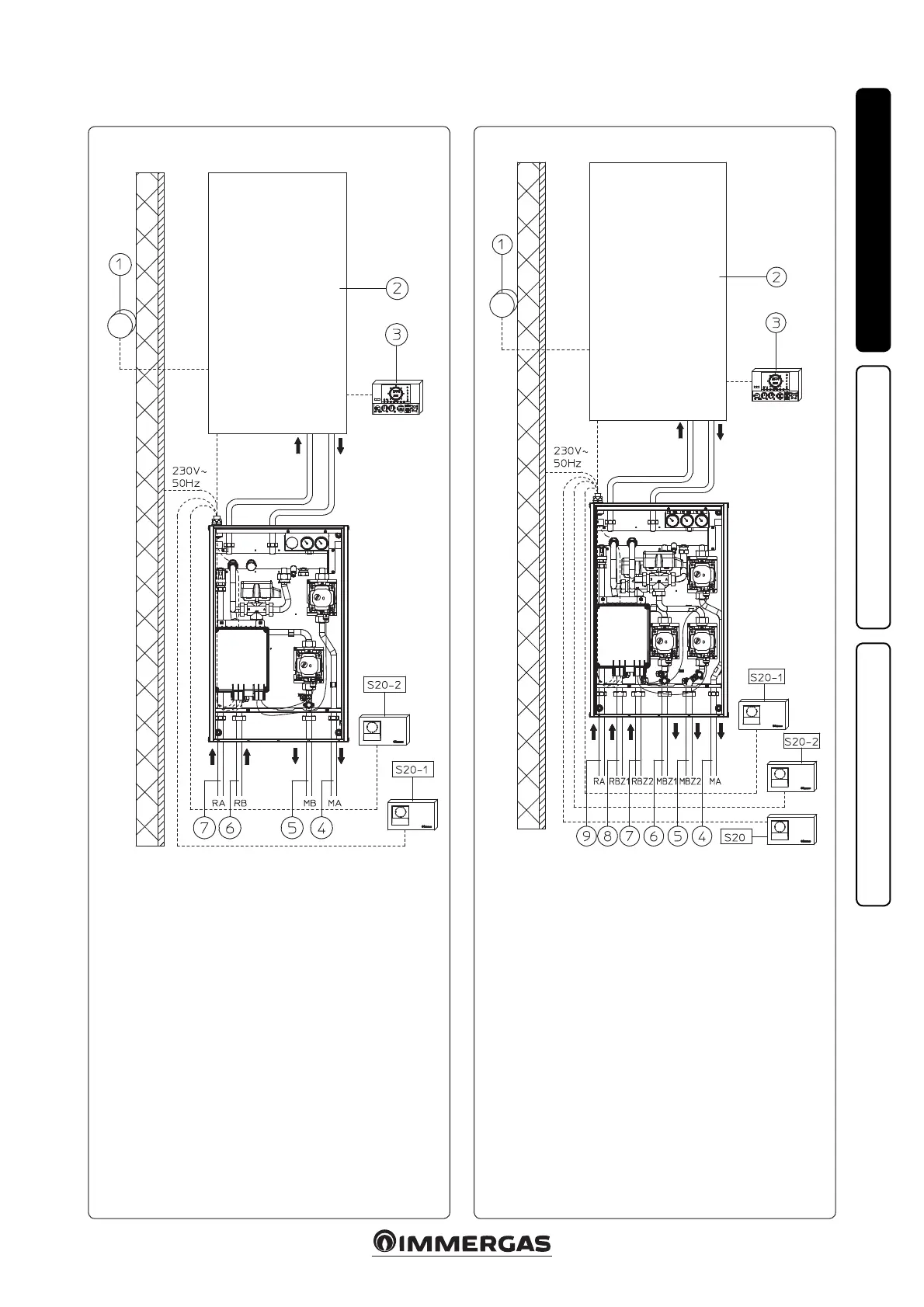
DIM A-BT installation layout (1 zone in H. T. and 1 zone in L. T.).
Key:
S20-1 - Zone 1 room thermostat (high temperature)
S20-2 - Zone 2 room thermostat (low temperature)
1 - External probe (optional)
2 - Boiler
3 - Comando Amico Remoto
V2
remote control (optional)
4 - High-temperature system ow
5 - Low-temperature system ow
6 - Return from Low-Temperature system
7 - High-temperature system return
Factory settings dene zone 2 as the main zone.
(See g. 3-3 for electrical connection and zone board setting)
DIM H-2LT installation layout (1 zone in H. T. and 2 zone in L. T.).
Key:
S20 - High-temperature zone room thermostat
S20-1 - Low-temperature zone 1 room thermostat
S20-2 - Low-temperature zone 2 room thermostat
1 - External probe (optional)
2 - Boiler
3 - Comando Amico Remoto
V2
remote control (optional)
4 - High-temperature system ow
5 - Zone 2 Low-Temperature system ow
6 - Zone 1 Low-Temperature system ow
7 - Zone 2 Low-Temperature system return
8 - Zone 1 Low-Temperature system return
9 - High-temperature system return
Factory settings dene zone 2 as the main zone.
(See g. 3-4 for electrical connection and zone board setting)