EasyManua.ls Logo

Insignia NS-RTM18BK8L - Main Components; Setting up Your Refrigerator; Before Using Your Refrigerator; Finding a Suitable Location

Insignia NS-RTM18BK8L
23 pages
To Next Page IconTo Next Page
To Next Page IconTo Next Page
To Previous Page IconTo Previous Page
To Previous Page IconTo Previous Page
Loading...
6
www.insigniaproducts.com
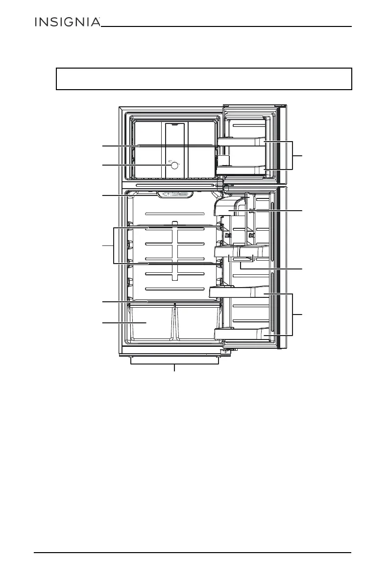
Main components
Setting up your refrigerator
Before using your refrigerator
1 Remove the interior packing.
2 Let the refrigerator stand upright for approximately four hours before
connecting it to power. This reduces the possibility of a malfunction in the
cooling system from improper handling during transportation.
3 Clean the interior surface with lukewarm water using a soft cloth.
4 Wait for approximately 24 hours after the thermostat has been set before
placing any food in your refrigerator.
Finding a suitable location
This refrigerator is designed to be free standing only.
Note: This illustration shows a right-opening refrigerator. Left-opening models are
configured the same, except they open from right to left.
Freezer control
knob
Glass crisper cover
Crispers
Leveling feet
Freezer door
racks
Butter
keeper
Refrigerator
control panel
w/LED
Door racks
Glass shelves
Door racks
(small)
Wire shelf

Related product manuals