EasyManua.ls Logo

INVERTEC optidrive E IP20 - 3 Mechanical Installation; General; UL Compliant Installation; Mechanical Dimensions and Mounting - IP20 Open Units

Default Icon
28 pages
Print Icon
To Next Page IconTo Next Page
To Next Page IconTo Next Page
To Previous Page IconTo Previous Page
To Previous Page IconTo Previous Page
Loading...
Optidrive ODE-3 1Ph Output User Guide Revision 1.00
8
www.invertekdrives.com
3
Mechanical Installation
3. Mechanical Installation
3.1. General
The Optidrive should be mounted in a vertical position only, on a flat, flame resistant, vibration free mounting using the integral mounting
holes or DIN Rail clip.
IP20 Optidrives must be installed in a pollution degree 1 or 2 environment only.
Do not mount flammable material close to the Optidrive
Ensure that the minimum cooling air gaps, as detailed in section 3.5 and 3.7 are left clear
Ensure that the ambient temperature range does not exceed the permissible limits for the Optidrive given in section 9.1
Provide suitable clean, moisture and contaminant free cooling air sufficient to fulfil the cooling requirements of the Optidrive
3.2. UL Compliant Installation
Refer to section 9.3 on page 27 for Additional Information for UL Compliance.
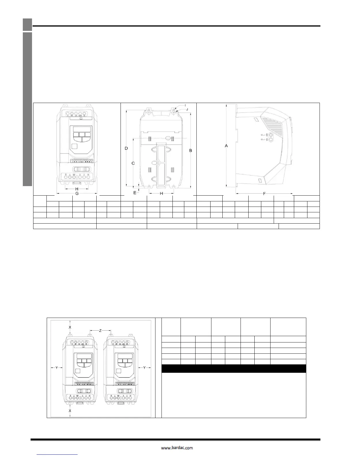
3.3. Mechanical Dimensions and Mounting IP20 Open Units
Drive
Size
A
B
C
D
E
F
G
H
I
J
Weight
mm
in
mm
in
mm
in
mm
in
mm
in
mm
in
mm
in
mm
in
mm
in
mm
in
Kg
lb
1
173
6.81
160
6.30
109
4.29
162
6.38
5
0.20
123
4.84
83
3.27
50
1.97
5.5
0.22
10
0.39
1.0
2.2
2
221
8.70
207
8.15
137
5.39
209
8.23
5.3
0.21
150
5.91
110
4.33
63
2.48
5.5
0.22
10
0.39
1.7
3.8
Mounting Bolts
Frame Size 1 2
4 x M5 (#8)
Frame Size 4
4 x M8
Tightening Torques
Frame Sizes 1 2
Control Terminals
0.5 Nm (4.5 lb-in)
Power Terminals
1 Nm (9 lb-in)
3.4. Guidelines for Enclosure Mounting IP20 Units
IP20 drives are suitable for use in pollution degree 1 environments, according to IEC-664-1. For pollution degree 2 or higher environments,
drives should be mounted in a suitable control cabinet with sufficient ingress protection to maintain a pollution degree 1 environment
around the drive.
Enclosures should be made from a thermally conductive material.
Ensure the minimum air gap clearances around the drive as shown below are observed when mounting the drive.
Where ventilated enclosures are used, there should be venting above the drive and below the drive to ensure good air circulation. Air
should be drawn in below the drive and expelled above the drive.
In any environments where the conditions require it, the enclosure must be designed to protect the Optidrive against ingress of airborne
dust, corrosive gases or liquids, conductive contaminants (such as condensation, carbon dust, and metallic particles) and sprays or
splashing water from all directions.
High moisture, salt or chemical content environments should use a suitably sealed (non-vented) enclosure.
The enclosure design and layout should ensure that the adequate ventilation paths and clearances are left to allow air to circulate through the
drive heatsink. Invertek Drives recommend the following minimum sizes for drives mounted in non-ventilated metallic enclosures:-
Drive
Size
X
Above &
Below
Y
Either
Side
Z
Between
Recommended
airflow
mm
in
mm
in
mm
in
CFM (ft
3
/min)
1
50
1.97
50
1.97
33
1.30
11
2
75
2.95
50
1.97
46
1.81
22
Note :
Dimension Z assumes that the drives are mounted side-by-side with
no clearance.
Typical drive heat losses are 3% of operating load conditions.
Above are guidelines only and the operating ambient temperature of
the drive MUST be maintained at all times.
Bardac Drives

Table of Contents