EasyManua.ls Logo

INVT GD300-5R5G-4

INVT GD300-5R5G-4
289 pages
To Next Page IconTo Next Page
To Next Page IconTo Next Page
To Previous Page IconTo Previous Page
To Previous Page IconTo Previous Page
Loading...
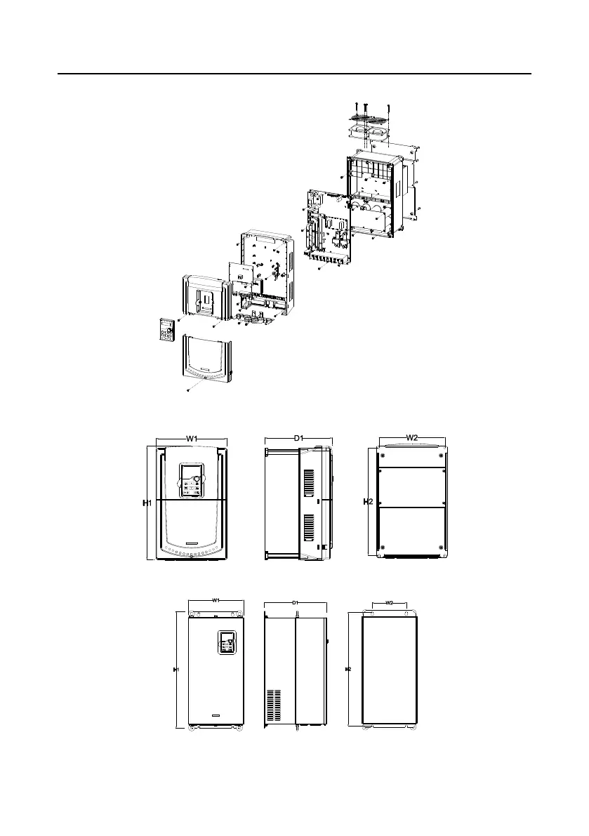
Goodrive300 Series VFD Dimension drawings
252
C.3 VFD structure
C.4 Dimensions for VFDs of AC 3PH 380V(-15%)440V(+10%)
C.4.1 Wall installation
Wall installation of 380V 1.5-30kW VFDs
Wall installation of 380V 37-110kW VFDs

Table of Contents

Related product manuals