EasyManua.ls Logo

INVT Goodrive GD35-015G-4-H1

INVT Goodrive GD35-015G-4-H1
298 pages
To Next Page IconTo Next Page
To Next Page IconTo Next Page
To Previous Page IconTo Previous Page
To Previous Page IconTo Previous Page
Loading...
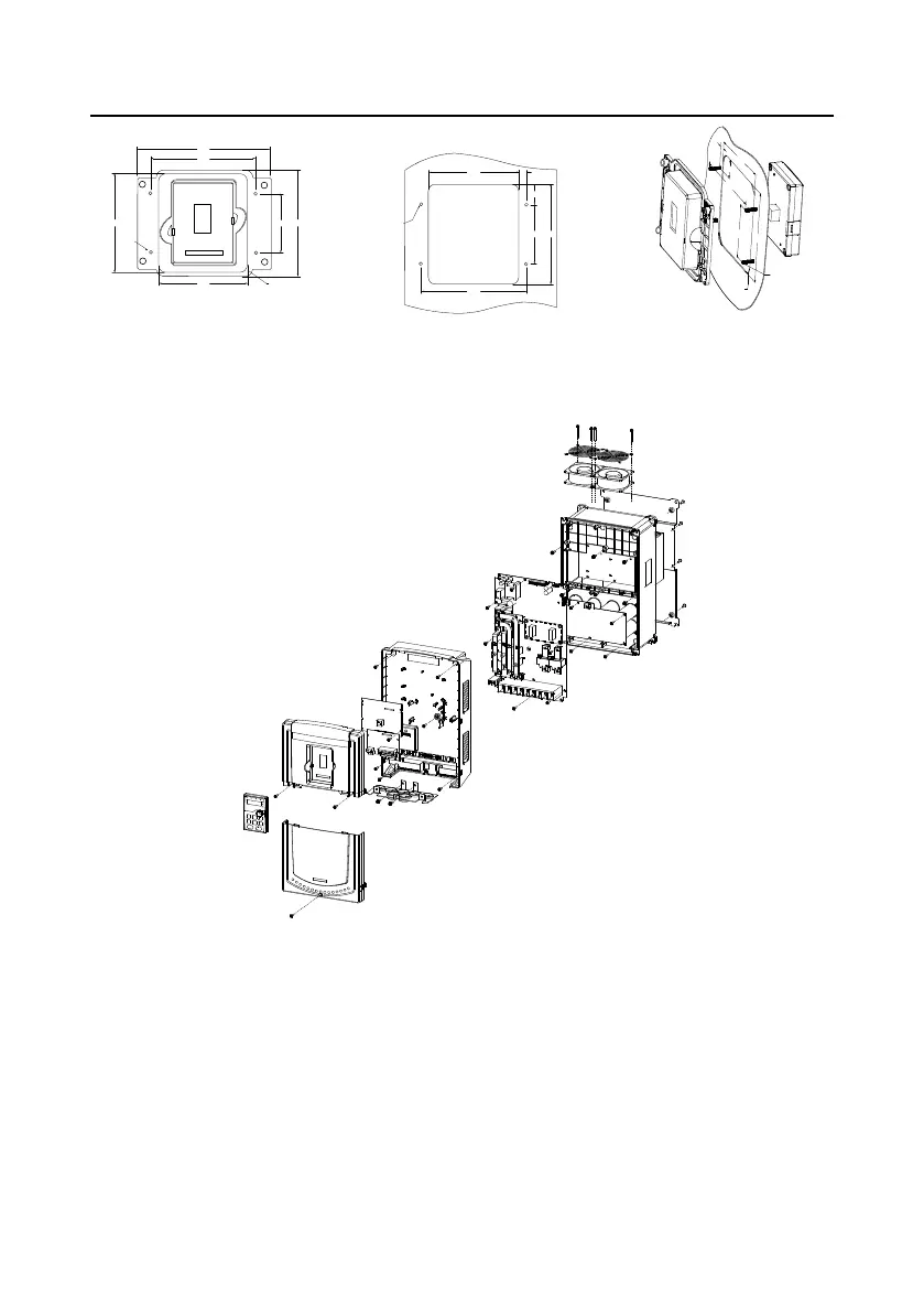
Goodrive35 Series Closed-loop Vector Control VFD Dimension drawings
261
160.0
125.0
81.0 145.5
106.0 4-R12
135.5
4- Φ 4.5
160.0
125.0
8.5
108.0
125.0
28.4
81
137.581.0
4-R13
137.5
8.5
108
28.4
125
4-M4×15 (stud)
4-M4×15 (stud)
Customer installation dimension
Keypad adapter bracket
Figure C-2 Installation bracket of the keypad (380 V 37315 kW; 660 V 22630 kW) (standard)
C.3 VFD structure

Table of Contents

Related product manuals