EasyManua.ls Logo

INVT iMars BG10KTR - Products Modules

INVT iMars BG10KTR
64 pages
Print Icon
To Next Page IconTo Next Page
To Next Page IconTo Next Page
To Previous Page IconTo Previous Page
To Previous Page IconTo Previous Page
Loading...
iMars grid-tied solar inverters Product overview
12
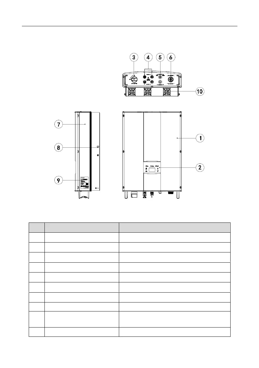
2.2 Products appearance
Figure 2.3 Products appearance
Table 2-1 Parts instruction
No.
Name
Instruction
1
Cover
2
Operational panel
LED status light, LCD display, keypad
3
DC switch
On–off of the DC input (optional)
4
DC input port
For the connection of solar modules
5
Communication port
RS485 and EXT communication port
6
AC terminal
For the connection of AC output
7
Cooling chamber
8
Back panel mounting screws
9
Name plate
For rated parameters and safety precautions
of the inverter
10
FAN
4~6kW(NO FAN) , 8~10kW(Air cooling)

Other manuals for INVT iMars BG10KTR

Related product manuals