EasyManua.ls Logo

IPSO DR30SLG - MULTIPLE EXHAUST DUCT INSTALLATION DETAILS

IPSO DR30SLG
64 pages
Print Icon
To Next Page IconTo Next Page
To Next Page IconTo Next Page
To Previous Page IconTo Previous Page
To Previous Page IconTo Previous Page
Loading...
Page 25
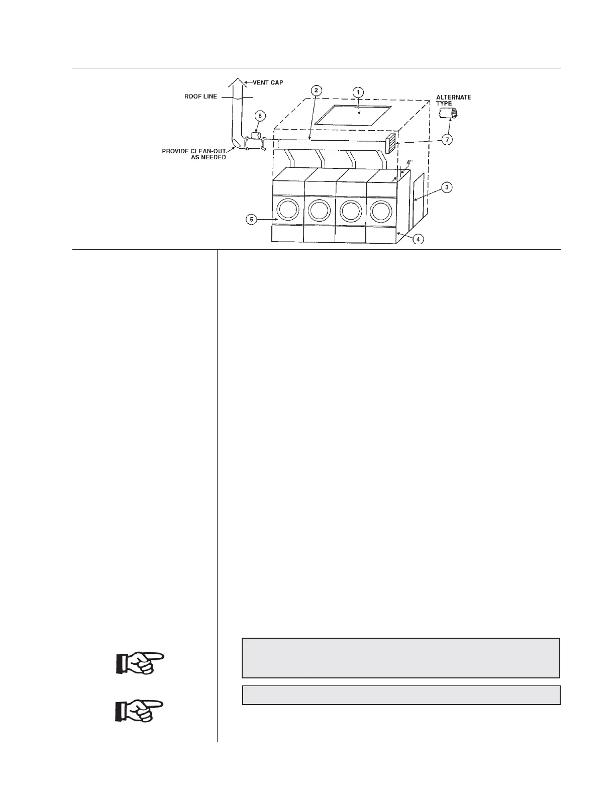
Dryer InstallationWith Multiple Exhaust
For Exhaust Duct more than 14 feet (5 m) and 2 elbows equivalent and
more than 0.3 inches (8 mm) water column static pressure.
(See illustration on next page.)
1. Make-up air from outside building may enter enclosure from top or
side walls. (See Dryer Make-up Air Requirements Chart)
2. Use constant diameter duct with area equal to the sum of dryer duct
areas.
EXAMPLE: 6-8 inches (203 mm) diameter duct = 1-19.6 inches
(498 mm) diameter duct in area. Use 20 inches (508 mm) diameter
duct or diameter to match tube-axial fan.
3. Enclosure (plenum) with service door. This separates the dryer air from
room comfort air. If dryers use room air instead of outside air, the heat
loss can be another 25 Btu/h (6.3 kcal/h) for each cubic foot per minute
(cfm) used.
4. Zero inches clearance to combustible material allowed on sides and at
points within 4 inches (100 mm) of front on top.
5. Heat loss into laundry room from dryer fronts only is about 60 Btu/h
per square foot (15 kcal/h per 0.1m²).
6. Flange mounted, belt driven tube-axial fan. Fan must run when one or
more dryers are running. See suggested Automatic Electrical Control
Wiring Diagram on previous page. Must meet local electrical codes.
Fan air flow (cfm) (m³/h.) is equal to sum of dryer air flows, but static
pressure (SP) is dependent on length of pipe and number of elbows.
7. Barometric bypass damper—Adjust to closed flutter position with all
dryers and exhaust fan running. Must be located within enclosure.
CAUTION: Never install hot water heaters or other gas appliances
in the same room as dryers. Never install cooling exhaust fans in the
same room as dryers.
CAUTION: Never exhaust dryers with other types of equipment.
DRYER INSTALLATION
WITH MULTIPLE EXHAUST

Related product manuals