EasyManua.ls Logo

ITT Lowara - Page 76

ITT Lowara
Print Icon
To Next Page IconTo Next Page
To Next Page IconTo Next Page
To Previous Page IconTo Previous Page
To Previous Page IconTo Previous Page
Loading...
pt
76
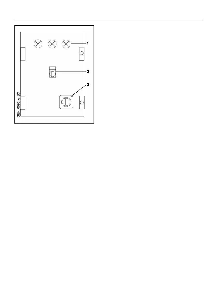
1 - Sinalização
- Tensão eléctrica de alimentação, cor branca.
- Sobrecarga térmica, cor vermelha.
- Bomba em funcionamento, cor verde.
2 - Selector de três posições
- MANUAL : Põe em funcionamento manualmente
o motor.
- AUTOMÁTICO: Arranque e Paragem do motor
do pressostato.
- DESACTIVADO “0”: Electrobomba desactivada,
não pode arrancar. Paragem imediata do motor se
em funcionamento.
3 - Interruptor geral
Interruptor geral de bloqueio da porta que pode
ser bloqueado em posição aberta com função de
disjuntor e paragem de emergência.
Predisposto para a ligação a um flutuador ou a um pressostato de mínima para evitar o
funcionamento sem água. Um módulo de controlo de nível opcional (fornecido por
encomenda) permite a ligação de sondas de eléctrodos com a possibilidade de regular a
sensibilidade em relação com a dureza da água.
Por encomenda uma série de contactos livres para o controlo do estado do quadro:
- Bomba em funcionamento
- Bloqueio térmico (sobrecarga)
- Falta de água
Quadro da motobomba diesel
Ver o manual entregue com a motobomba diesel.
ACESSÓRIOS
Quadro com bateria tampão e carregador de bateria
Quadro eléctrico com carregador de bateria externa para a alimentação das sinalizações
luminosas e acústicas em local vigiado.
Alarmes acústicos e luminosos
Alarme acústico e luminoso de cor vermelha alimentado em baixa tensão.
Alarme acústico e luminoso de cor amarela alimentado em baixa tensão.

Related product manuals