EasyManua.ls Logo

Jackson MSC TEMPSTAR - Page 8

Default Icon
55 pages
Print Icon
To Next Page IconTo Next Page
To Next Page IconTo Next Page
To Previous Page IconTo Previous Page
To Previous Page IconTo Previous Page
Loading...
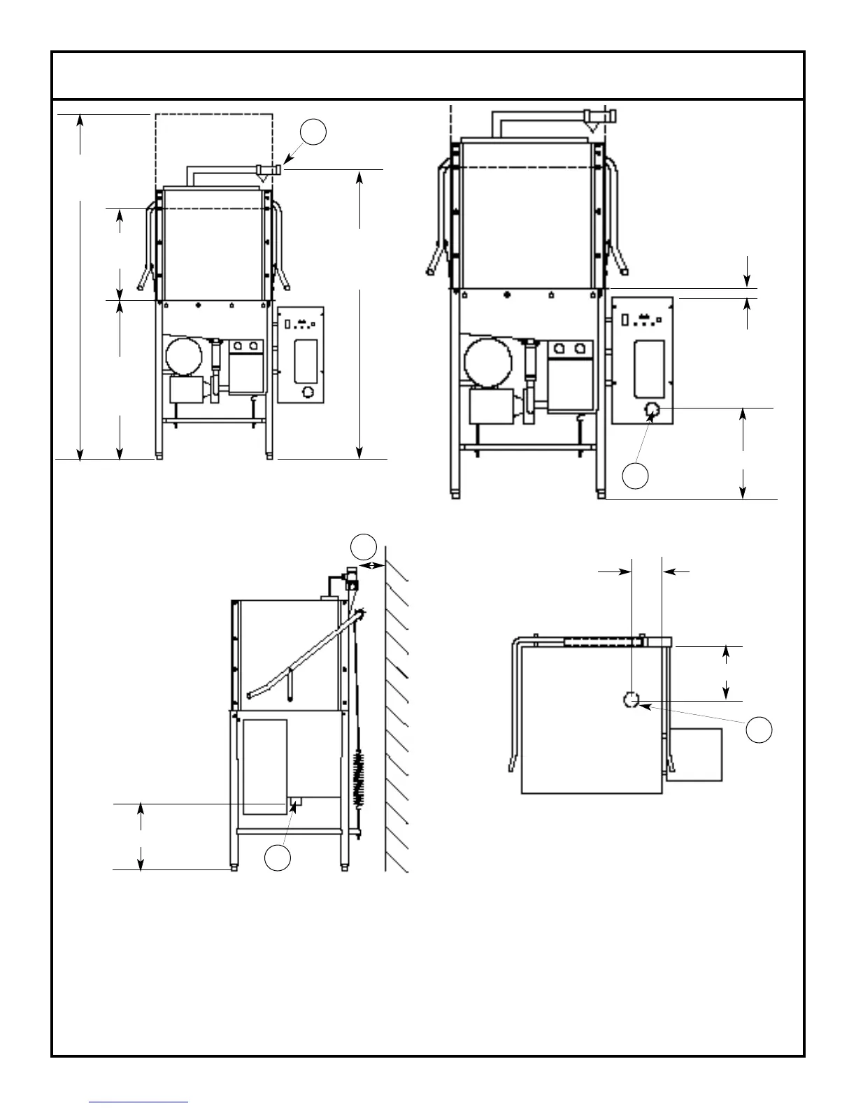
DIMENSIONS TEMPSTAR/TEMPSTAR NB (SIDE MOUNTED CONTROL BOX)
6
61 3/4”
WATER
INLET TO
FLOOR
10 5/8”
ADJUSTABLE HEIGHT
OF 4” TO
8”. SHIPS AT 4” SPACE.
14 3/8”
NOTE: MINIMUM
SPACE REQUIRED IS
FOR BOTH THE
BACK AND SIDES.
2 7/8”
15 1/2”
A- WATER INLET (3/4” IPS)
B- ELECTRICAL CONNECTION POINT
C- DRAIN (1 1/2”IPS)
D-STANDARD CLEARANCE BETWEEN
MACHINE AND WALL (WITH DISHTABLE) IS 4”.
LEGEND
17”
OPENING
34”
TABLE
HEIGHT
76”
W/ DOOR
OPEN
A
B
C
D
C