EasyManua.ls Logo

JFY tech JSI-1100TL - 2.3 Fixed on the Wall

Default Icon
30 pages
Print Icon
To Next Page IconTo Next Page
To Next Page IconTo Next Page
To Previous Page IconTo Previous Page
To Previous Page IconTo Previous Page
Loading...
www.JFY-tech.com
9
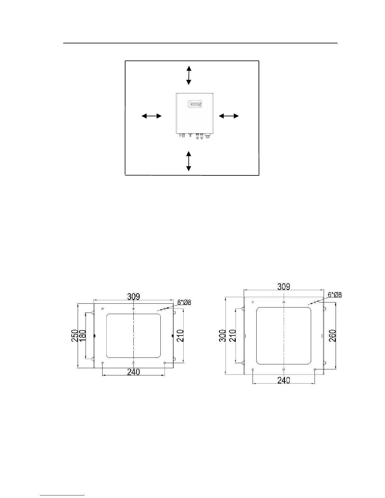
200mm (8”)
200mm (8”)
200mm (8”)
200mm (8”)
Fig.2 Installing minimum clearances around inverter
2.3 Fixed on the wall
Step1: Drill 6 or 9 holes as illustrated in the Fig.3
Step2: Fix the mounting frame as illustrated in the Fig.4 by the screws, then, hang
the inverter on the mounting frame.
Step3: Fix safety-lock screws at left side and right side as illustrated in Fig.5
with the attached socket head wrench.
Step4: Check the installation conditions.
For JSI-1100TL/-S and JSI-1500TL/-S For JSI-2000TL/-S, JSI-2500TL/-S
JSI-3000TL/-S, and JSI-3600TL/-S

Related product manuals