EasyManua.ls Logo

JLA 98 - Connect Drain Hose to Receptacle; Standpipe Drain Setup

JLA 98
29 pages
Print Icon
To Next Page IconTo Next Page
To Next Page IconTo Next Page
To Previous Page IconTo Previous Page
To Previous Page IconTo Previous Page
Loading...
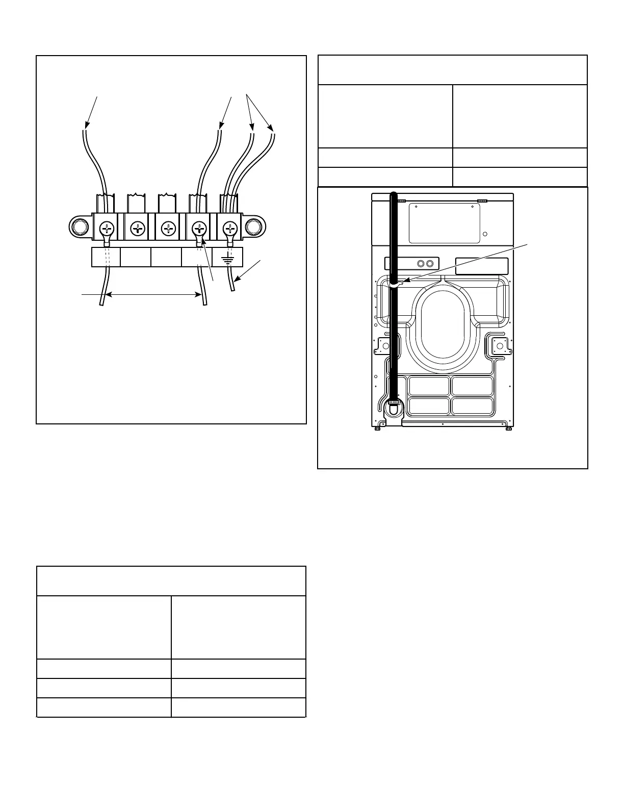
Terminal Block Wired For 230 Volt Single-Phase As
Viewed Through Rear Access Panel
FLW2240N_SVG1
L 1 N
1
2
4
5
6
3
1. Black Wire
2. White Wire
3. Green/Yellow Wire
4. Earth/Ground - Power Cord
5. Neutral
6. 230 Volt
Figure 15
Drain Hose Models - Connect Drain
Hose to Drain Receptacle
Remove the drain hose from its shipping position on the rear of
the washer by removing the shipping tape.
IMPORTANT: Drain receptacle must be capable of han-
dling a minimum of 1-3/8 inch [35 mm] outside diame-
ter drain hose.
Drain Flow Rate
Drain Height
Flow Rate
gallons per minute [lit-
ers per minute]
3 ft. [0.9 m] 7.3 [27.7]
5 ft. [1.5 m] 4.7 [17.8]
6 ft. [1.8 m] 3.5 [13.4]
Table continues...
Drain Flow Rate
Drain Height
Flow Rate
gallons per minute [lit-
ers per minute]
7 ft. [2.1 m] 1.3 [4.8]
8 ft. [2.4 m] 0 [0]
FLW2337N_SVG
1
1. Shipping Tape
Figure 16
Standpipe Installation
1. Place the drain hose into the standpipe.
2. Remove the beaded tie-down strap from accessories bag and
place around standpipe and drain hose and tighten strap to
hold hose to standpipe. Refer to Figure 17 . This will prevent
the drain hose from dislodging from drain receptacle during
use.
3. If hose does not fit securely in standpipe because it is too
long:
a. Remove hose clamp attaching it to washer.
b. Cut hose to desired length.
c. Reattach hose and hose clamp.
Installation
©
Published by permission of the copyright owner -
DO NOT COPY or TRANSMIT
17 Part No. 805412R7