EasyManua.ls Logo

Johnson Controls YICM012B21S - Electronic Expansion Valve

Johnson Controls YICM012B21S
152 pages
Print Icon
To Next Page IconTo Next Page
To Next Page IconTo Next Page
To Previous Page IconTo Previous Page
To Previous Page IconTo Previous Page
Loading...
(Main Parts)
MAINTENANCE
SM-18003
4-25
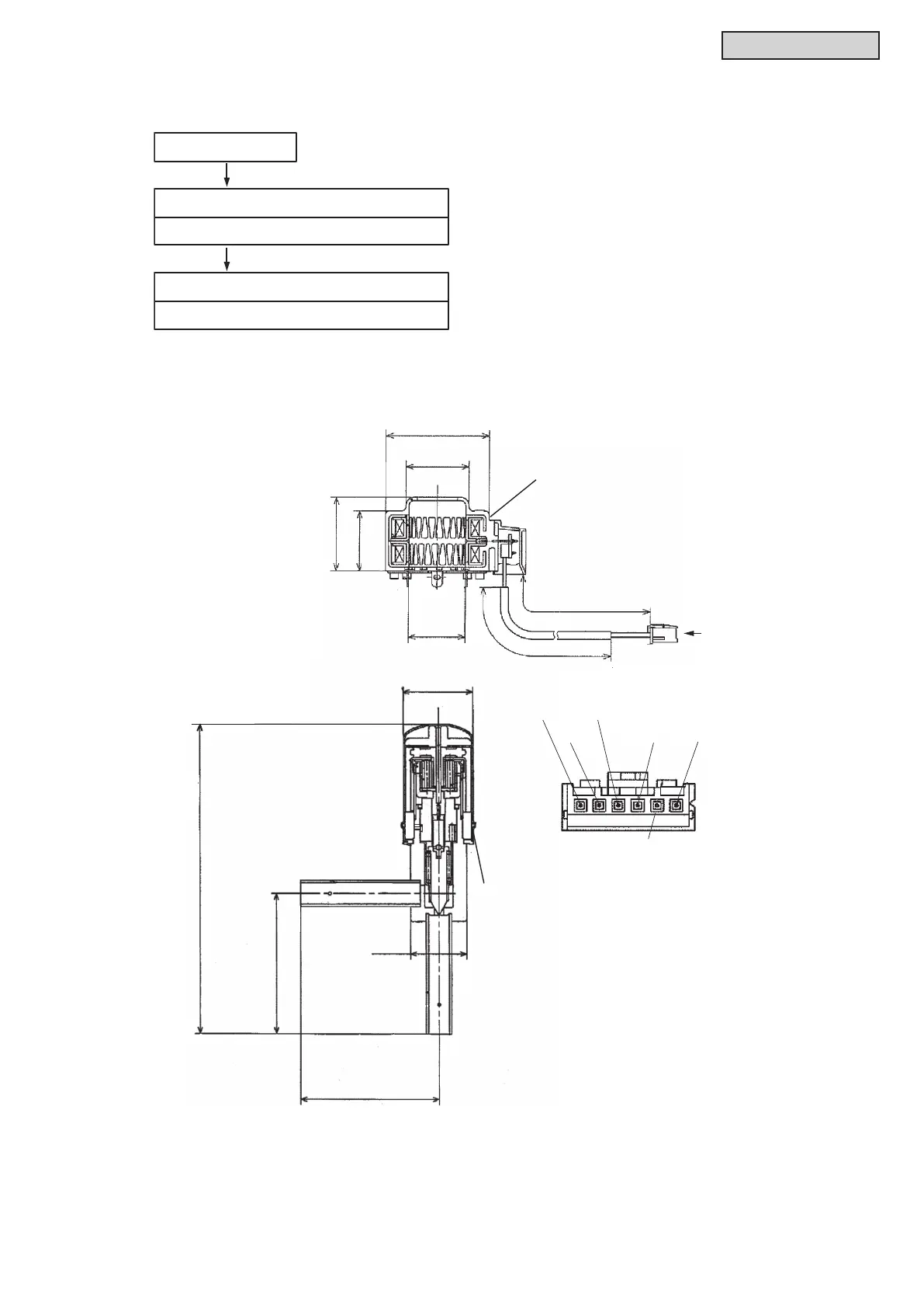
4.4.3.4 ElectronicExpansionValve
d
+
-
+
-
φ
7/8
(21.85)
φ
1-9/16
(40)
φ
15/16
(24.4)
35-7/16 13/16
(900 20)
33-7/16 13/16
(850 20)
+
-
1-1/8 (29)
7/8 (23)
Electronic Expansion
Valve Coil
Model: PAM-MD12HS-4
Electronic Expansion
Valve Body
(1)(3)
(4)
(5)
(6)
Red <COM>
White
Yellow
Orange
Blue
D
Enlarged View of D
φ
7/8
(21.75)
b
c
a
Connector No. (2) is
unoccupied.
Unit: inch (mm)
+
-
Micro-Computer
Pulse Signal
2-Phase Permanent Magnetic Pulse Motor
Control 0 to 2,000 Pulse by 1 Pulse
Refrigerant Flow Control
Precise Control

Table of Contents

Related product manuals