EasyManua.ls Logo

Ken DW 412 - Page 43

Ken DW 412
44 pages
Print Icon
To Next Page IconTo Next Page
To Next Page IconTo Next Page
To Previous Page IconTo Previous Page
To Previous Page IconTo Previous Page
Loading...
Tegn. nr.:
Dato /
initialer:
Brobyværk, DK 5672 Broby
Tlf. 62 63 10 91 Telefax 62 63 16 07
Dato
Sign.
Rett.-nr. Beskrivelse
18.02.11 SUP P1 tilføjet
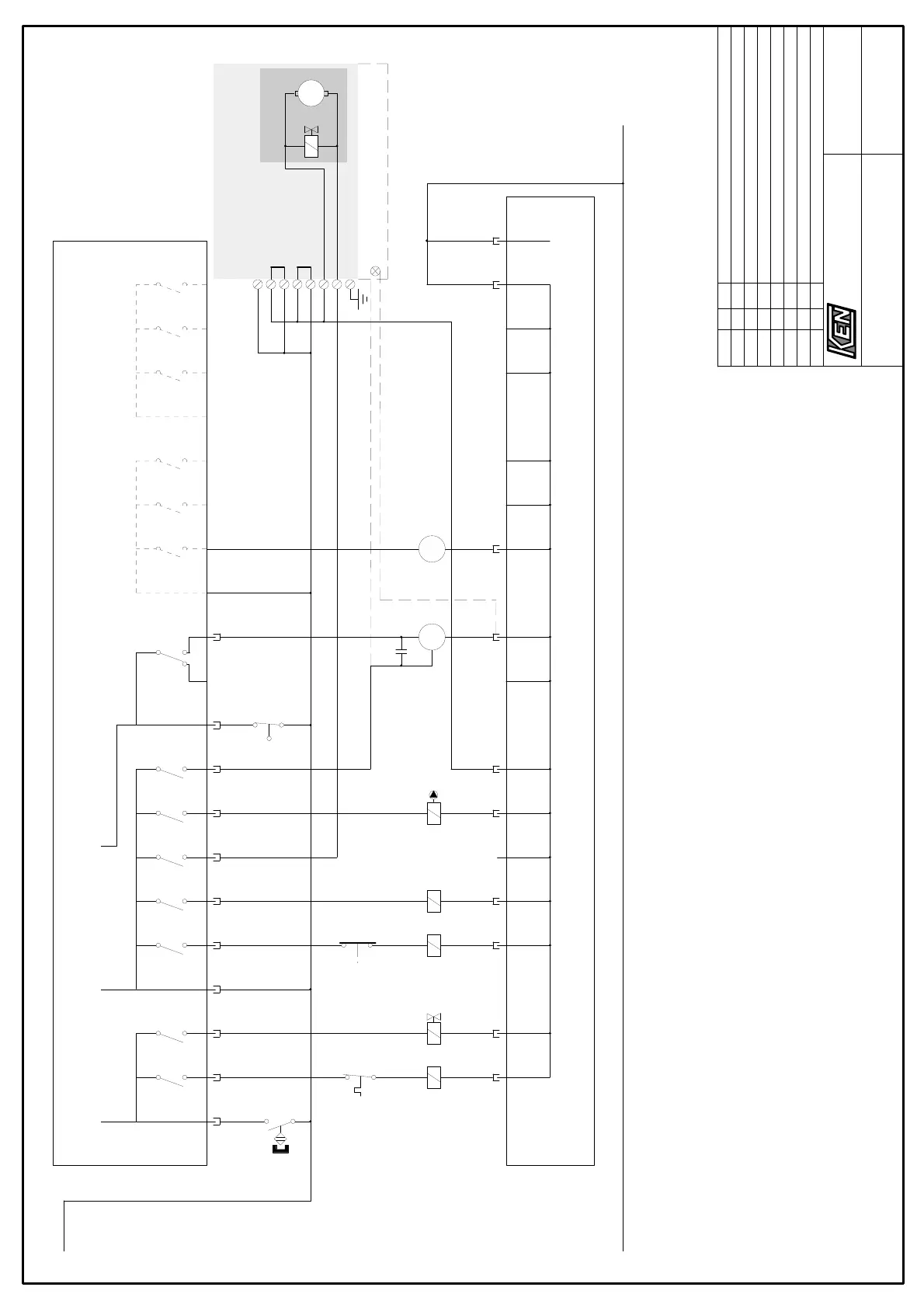
DW 410/412
Udgange / Outputs
- -
26-10-2009 /SHH
b1 Hætte lukket / Hood closed
b2 Klemsikring / Hood safety switch (412)
C1 Kontaktor varmelegeme vasketank / Contactor Heating Element Washing
C2 Kontaktor varmelegeme skylletank / Contactor Heating Element Rinsing
C3 Kontaktor vaskepumpe M1 / Contactor Wash Pump M1
e1 Intern termosikring vaskepumpe / Internal Thermal cut out Wash Pump
M2 Udsugning, kondensator / Extraction, Condensator (Option)
M3 Hættemotor / Hood motor (412)
M4 Afløbspumpe / Drain pump (Option)
S1 Sæbepumpe / Detergent Pump (Option 410)
V1 Magnetventil skyl / Valve Rinsing
P1 Signal vask afsluttet / Signal wash finished
34-3
S4
M
M2
blå / blue
blå / blue
34
C3
1615141312111009087654321
J7 Relay Common
J5 Relay Out
19818717616155144133122111 2010 9
Digital In
Phase-0
Digital In
Phase-1
Digital In
Phase-2
M3
V1 S1
5-02
7-01
5-12
34-5-11
5-13
5-14
5-05
5-16
5-01
7-02
7-04
7-06
7-07
7-09
7-15
7-16
C2
5-04
N
N
34
Vandbehandlingsanlæg /
Water softener
Trykstigningspumpe /
Water pressure booster
Maskinudsugning /
Steam extraction
kondensator
(Option)
34-4
e1
13
b1
C1
5-037-03
Samlet eksternt forbrug: max. 1 Amp/
Total external current consumption: max. 1Amp
C2
20
b2
5-20
M
Brown
Red
Black
5-04
M4
7-10
5-06
M
34-5-10
34
4
3
N
2
1
P1 (410)

Table of Contents