EasyManua.ls Logo

Kiturami K1-28E - Basic Connecting the Flue

Default Icon
55 pages
Print Icon
To Next Page IconTo Next Page
To Next Page IconTo Next Page
To Previous Page IconTo Previous Page
To Previous Page IconTo Previous Page
Loading...
23
ۣૐ ۞ইૐ઺Ҵ ೠҴ࢑সӏѺ ಿ૕҃৔మ
TerminalPositionwithMinimumDistance(mm)
M
Verticallyfromaterminalon
thesamewall.
1500
N
Horizontallyfromaterminalon
thesamewall.
300
R
Fromadjacentwalltoue
(verticalonly).
300
S
Fromanadjacentopening
window(verticalonly).
1,000
T
Adjacenttowindowsoropen-
ingsonpitchedandatroofs.
600
U
Belowwindowsoropeningson
pitchedroofs.
2,000
NOTE:1inaddition,theterminalshouldbenonearerthan150
mmtoanopeninginthebuildingfabricformedforthepurpose
ofaccommodatingabuilt-inelementsuchasawindowframe.
CAUTION
▪Installationsincarportsarenotrecommended.
▪Theuecannotbelowerthan1,000mmfromthetopofa
lightwellduetothebuildupofcombustionproducts.
▪Dimensionsfromaueterminaltoafannedairinlettobe
determinedbytheventilationequipmentsmanufacturer.
▪Aueterminalguardshouldbettedoveraterminal,
ifpersonscouldcomeintocontractwiththeterminal,
oritcouldbesubjecttodamageandwheretheterminalis
lessthan2,000mmfromthenishedoorlevel.
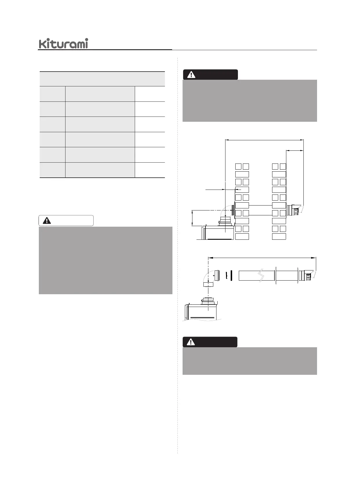
5.5.7BasicConnectingtheFlue
DANGER
Theexhaustgasductsmustnotbeincontactwithorclose
toinammablematerialandmustnotpassthroughbuilding
structuresorwallsmadeofinammablematerial.
Whenreplacinganoldappliance,theuesystemmustbe
changed.
MaximumLength
150mm
MinimumLength:500mm
96.5mm
163mm
MaximumLength
DANGER
Ensurethattheueisnotblocked.
Ensurethattheflueissupportedandassembledin
accordancewiththeseinstructions.
- Connection the Flue
-MinimumDistance
TerminalPositionwithMinimumDistance(mm)
A
Directlybelowanopening,air
brick,openingwindows,etc.
300
B
Aboveanopening,airbrick,open-
ingwindowetc.
300
C
Horizontallytoanopening,air
brick,openingwindowetc
300
D
Belowgutters,soilpipesordrain
pipes
75
E Beloweaves. 200
F Belowbalconiesorcarportroof 200
G
Fromaverticaldrainpipeorsoil
pipe.
150
H
Fromaninternalorexternal
corner.
300
I
Aboveground,rooforbalcony
level.
300
J
Fromasurfaceorboundaryline
facingaterminal.
600
K
From a terminal facing a terminal
(Horizontalue).
From a terminal facing a terminal
(Verticalue).
1,200/
600
L
Fromanopeningincarport(e.g.
door,window)intothedwelling.
1,200

Related product manuals