EasyManua.ls Logo

klover DIVA SLIM - Connections Data Sheet

klover DIVA SLIM
44 pages
Print Icon
To Next Page IconTo Next Page
To Next Page IconTo Next Page
To Previous Page IconTo Previous Page
To Previous Page IconTo Previous Page
Loading...
DIVA SLIM PELLET BOILER STOVE
8
EN - Rev. 1.0
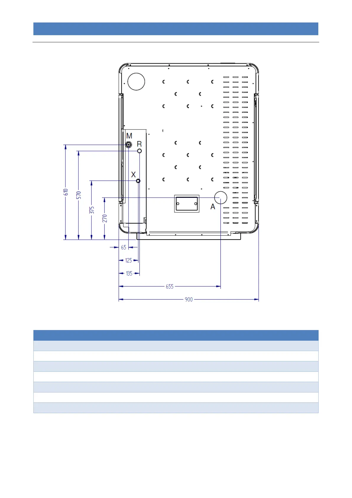
Connections data sheet
Description of connections
M = System Delivery
3/4" F
R = System Return
3/4" M
X = Safety valve drain
1/2" F
SL = Side flue gas outlet (refer to the “Overall dimensions” paragraph)
80 mm M
SU = Upper flue gas outlet (refer to the “Overall dimensions” paragraph)
80 mm M
SP = Rear flue gas outlet (refer to the Overall dimensions” paragraph)
80 mm M
A = Rear fitting for connection of optional extraction pipe
40 mm
REAR VIEW

Related product manuals