EasyManua.ls Logo

KNF N85.3 - Installation and Connection

KNF N85.3
40 pages
Print Icon
To Next Page IconTo Next Page
To Next Page IconTo Next Page
To Previous Page IconTo Previous Page
To Previous Page IconTo Previous Page
Loading...
Installation and connection Diaphragm pump N85, N86
16 Translation of original Operating and Installation Instructions, english, KNF 121258-121528 01/20
7. Installation and connection
Only install and operate the pumps under the pneumatic operating
parameters and conditions described in Chapter 4, Technical Data.
Observe the safety precautions (see Chapter 3).
7.1. Installation of the pump
Before installation, store the pump at the installation location to
bring it up to ambient temperature.
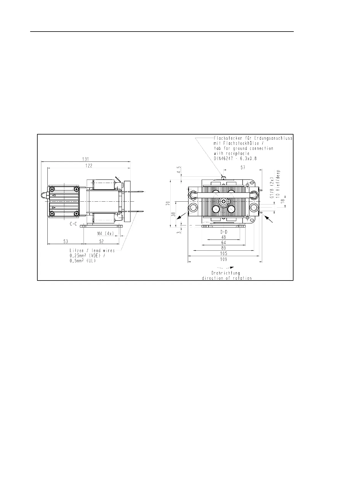
See Fig. 7 to Fig. 11 for mounting dimensions.
Fig. 7: Mounting dimensions pump series N85.3K_E
Mounting dimensions

Related product manuals