EasyManua.ls Logo

Kohler 8.5RMY - Section 8 Disassembly;Reassembly; 8.1 Disassembly Procedures

Kohler 8.5RMY
98 pages
Print Icon
To Next Page IconTo Next Page
To Next Page IconTo Next Page
To Previous Page IconTo Previous Page
To Previous Page IconTo Previous Page
Loading...
TP-5867 11/02 63Section 8 Disassembly/Reassembly
Section 8 Disassembly/Reassembly
This section provides instructions for the disassembly
and reassembly of the generator set alternator. Before
beginning the generator disassembly or reassembly
procedure, carefully read all safety precautions at the
beginning of this manual.
8.1 Disassembly
The disassembly procedure provides important
information to minimize disassembly time and indicates
where special configurations exist which may require
taking notes.
NOTICE
Hardware damage. The engine and generator set may use
both American Standard and metric hardware. Use the correct
size tools to prevent rounding of the bolt heads and nuts.
1. Remove the generator set from service.
a. Place the generator set master switch in the
OFF position.
b. Remove eight screws to remove the battery
compartment panel.
c. Disconnect power to the battery charger, if
equipped.
d. Disconnect the generator set engine starting
battery, negative (--) lead first.
e. Turn off the fuel supply to the generator set.
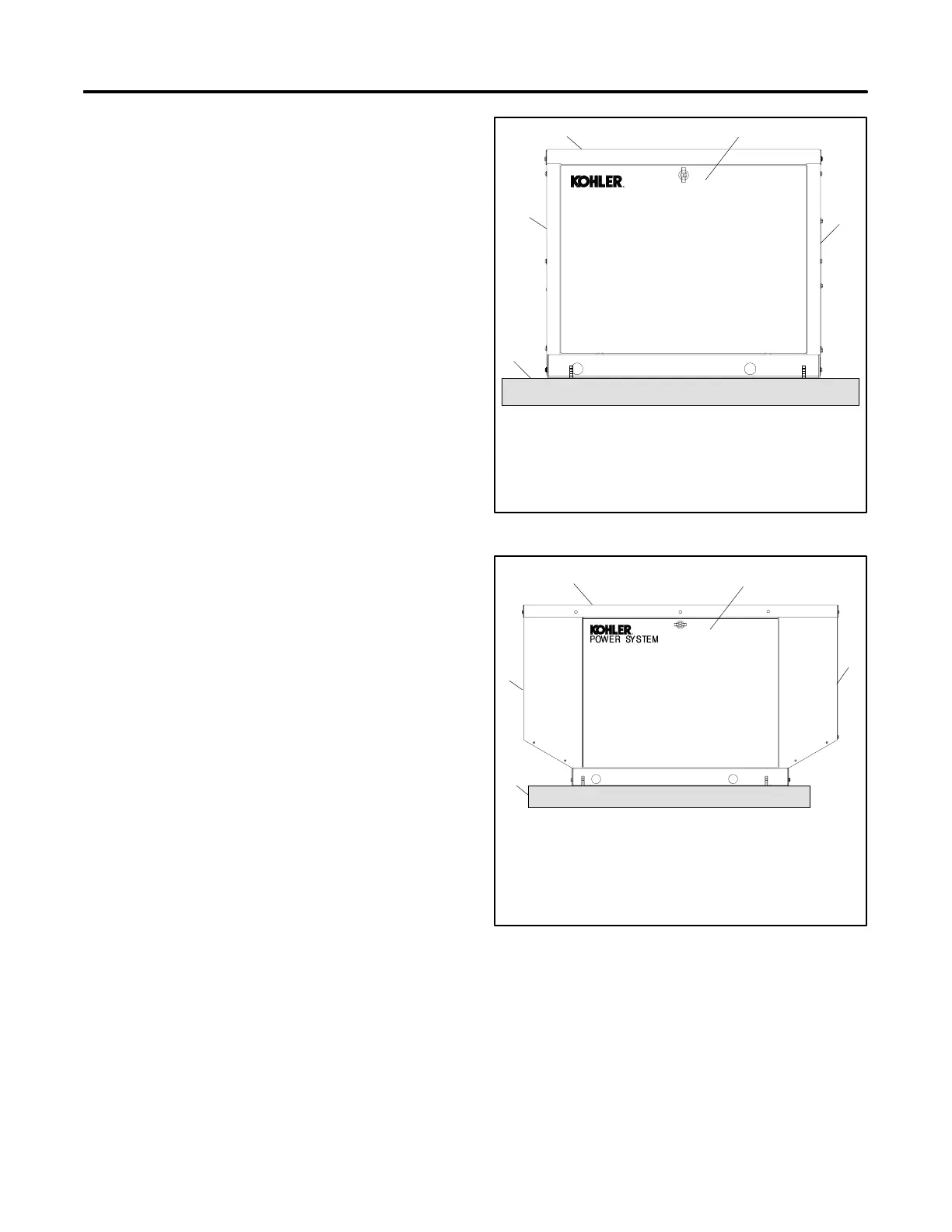
2. Open the enclosure.
a. Remove the service side door from the
generator set housing. See Figure 8-1 or
Figure 8-2.
b. Remove the generator set housing roof. See
Figure 8-1 or Figure 8-2.
c. Remove the alternator end housing panel. See
Figure 8-1 or Figure 8-2.
d. Remove the non-service side housing panel.
See Figure 8-1 or Figure 8-2.
A-358000C-B
12
3
4
5
R
POWER SYSTEM
1. Housing roof
2. Service side door
3. Battery compartment panel
4. Mounting pad
5. Alternator end housing panel
Figure 8-1 Generator Set Weather Housing
P-358000C-C
1
2
3
4
5
1. Housing roof
2. Service side door
3. Battery compartment panel
4. Mounting pad
5. Alternator end housing panel
Figure 8-2 Generator Set Sound Enclosure

Table of Contents

Other manuals for Kohler 8.5RMY

Related product manuals