EasyManua.ls Logo

Kyocera ECOSYS M6026cidn

Kyocera ECOSYS M6026cidn
375 pages
To Next Page IconTo Next Page
To Next Page IconTo Next Page
To Previous Page IconTo Previous Page
To Previous Page IconTo Previous Page
Loading...
2PX/2PY
1-5-27
1-5-8 PWBs
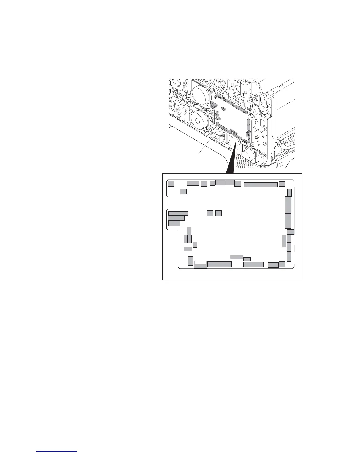
(1) Detaching and refitting the engine PWB
Procedure
1. Remove the left cover (see page 1-5-9).
2. Remove all connectors from the engine
PWB.
Figure 1-5-39
YC23
YC40
YC3
YC14
YC21
YC8
YC9
YC34
YC27
YC33
YC17
YC29
YC18
YC6
YC7
YC36
YC35
YC13
YC19
YC24
YC38
YC15
YC37
YC25
YC11
YC12
YC31YC32
YC4
YC20
YC10
YC26
YC42
YC16
YC28YC30
Engine PWB
Engine PWB

Table of Contents

Other manuals for Kyocera ECOSYS M6026cidn

Related product manuals