EasyManua.ls Logo

LAVAZZA LB 2800 - Wiring Diagram

LAVAZZA LB 2800
36 pages
Print Icon
To Next Page IconTo Next Page
To Next Page IconTo Next Page
To Previous Page IconTo Previous Page
To Previous Page IconTo Previous Page
Loading...
Maintenance manual for technical assistance - LB 2800 - LB 2810
Manual code 10066574 / Rel. 0.00 / March 2009
30
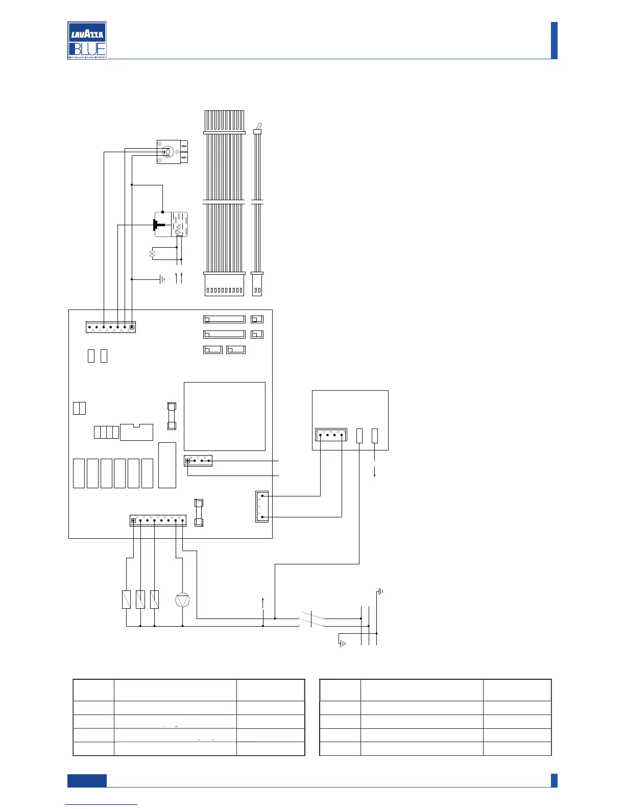
11. WIRING DIAGRAM
CN1
+
O
-
EVV
EVG
EVC
MP
RL2
RL3
RL4
RL5
RL6
RL7
RL8
CN3
JP1
JP2
JP7
JP8
JP6
JP4
JP12
JP9
F1
F2
FS1
FS2
CN2
CN1
TRF1
CN7
JP5 CN8 CN9
CN5
JP3
N
N
F
CV
SL
LED
CPR
CCP
CAL
JP10
N
FS2
ABILITAZIONE
TRASFORMATORE
SERVIZI SCHEDA
(CAL) Boiler
(CCP) Push button panel connection cable
(CN9) Group connector
(CPR) Programming key
(CV) Volumetric counter
(EVG) Group solenoid valve
(EVC) Boiler filling solenoid valve
(EVV) Steam solenoid valve
(F1) Fuse T10 A
(F2) Fuse T500 mA
(MP) Pump
(SL) Boiler level probe
(LED) Heating element LED indicator
PONT.
MOBILE
INSERITO DISINSERITO
JP2
Abilitazione funzione preinfusione
JP3
Chiave di programmazione
JP4
Abbinamento AEA + pompa Solo caffè.
JP5
Connettore tasto tè
PONT.
MOBILE
INSERITO DISINSERITO
JP6
Abbinamento tè + pompa
JP7
Funzionamento in “Continuo”
JP8
Dosi miste Solo caffè.
JP9
Abilitazione controllo temperatura
MOBILE
JUMPER
INSERTED
NOT INSERTED
MOBILE
JUMPER
INSERTED
NOT INSERTED
Enable pre-infusion function
Programming key
AEA + pump combination
Tea connector key
Coffee only
Coffee only
tea + pump combination
”Continuous” operation
Mixed doses
Enable temperature control
ENABLE CARD
SERVICES
TRANSFORMER

Related product manuals