EasyManua.ls Logo

LD Performance LaunchItPro - Page 6

LD Performance LaunchItPro
36 pages
Print Icon
To Next Page IconTo Next Page
To Next Page IconTo Next Page
To Previous Page IconTo Previous Page
To Previous Page IconTo Previous Page
Loading...
6
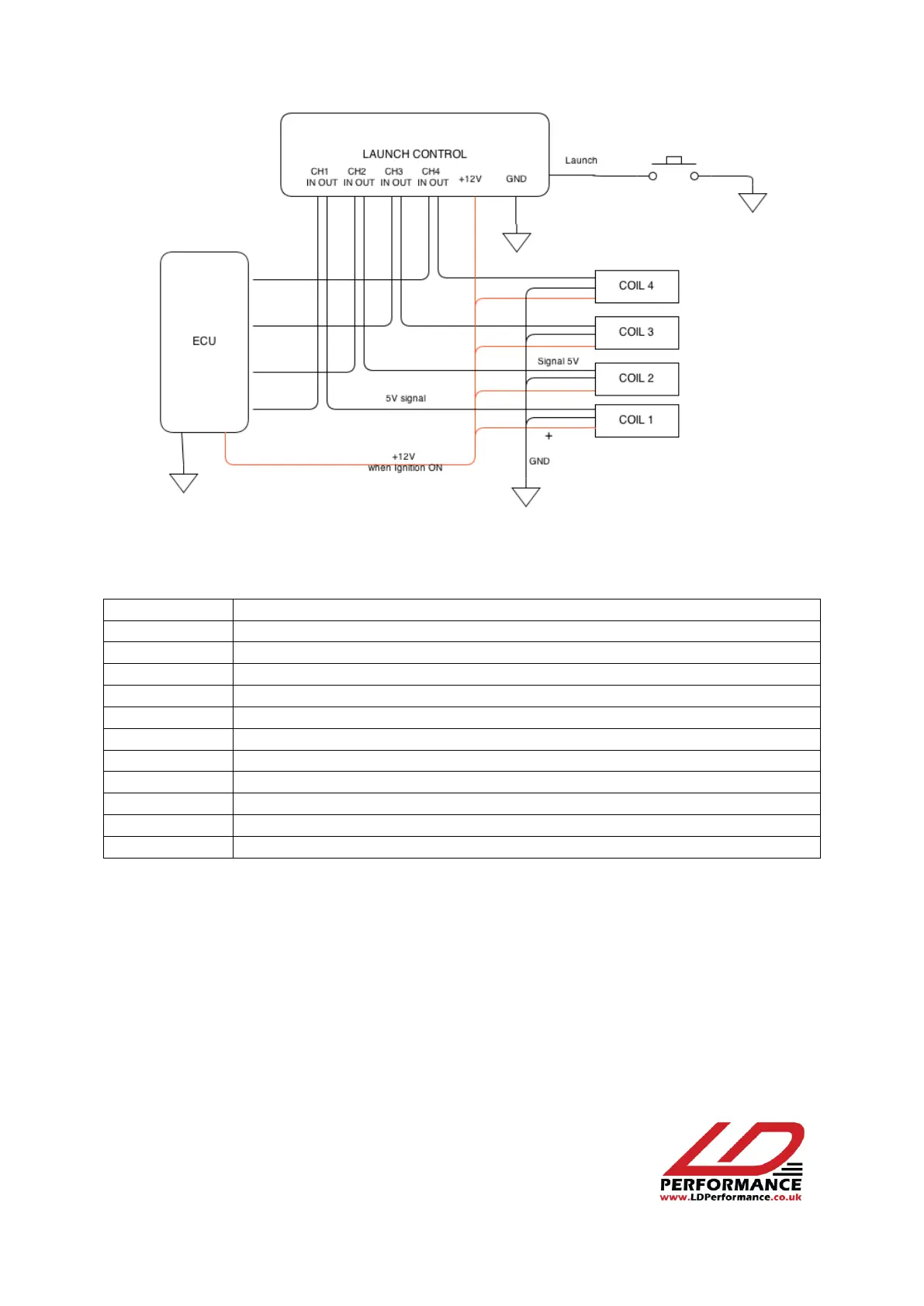
Figure 2: Wiring diagram with amplified coils
All wires to the Launch control module are marked in the following way:
Wire
Description
12V
12V ignition “ON” power supply
GND
Ground connection
CH1 IN
Signal from ECU
CH1 OUT
Signal to ignition module channel 1 / To coil 1 signal wire
CH2 IN
Signal from ECU
CH2 OUT
Signal to ignition module channel 2 / To coil 2 signal wire
CH3 IN
Signal from ECU
CH3 OUT
Signal to ignition module channel 3 / To coil 3 signal wire
CH4 IN
Signal from ECU
CH4 OUT
Signal to ignition module channel 4 / To coil 4 signal wire
Launch
Connects to clutch switch Launch is activated when connected to ground
If the number of coils is less than 4, only the relevant channels are connected; for example, if two
coils are used (or one double coil) leave CH3 IN, CH3 OUT, CH4 IN, CH4 OUT not connected to
anything.