EasyManua.ls Logo

Lennox FCA 60

Lennox FCA 60
142 pages
To Next Page IconTo Next Page
To Next Page IconTo Next Page
To Previous Page IconTo Previous Page
To Previous Page IconTo Previous Page
Loading...
Page 116 - IOM / ROOF-TOP FLEXY™ Series
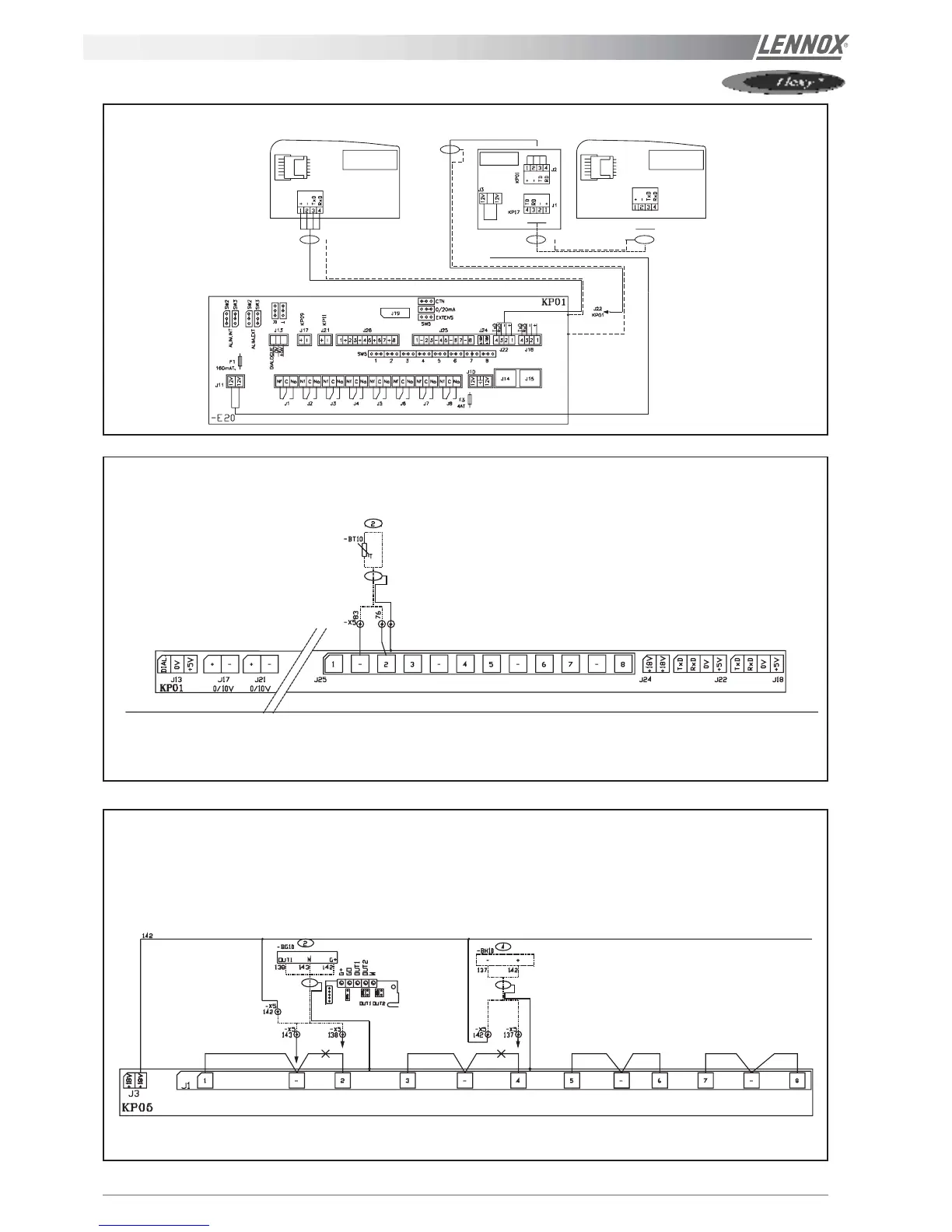
SITE ELECTRICAL CONNECTIONS
KP02
KP18
-E30
-E32
KP1
8
-E31
REGULATION TEMPERATURE PROBE
HYGIENE PROBE REGULATION HYGROMETRY PROBE