EasyManua.ls Logo

Lennox FCA 60 - Electrical Wiring Diagrams

Lennox FCA 60
142 pages
Print Icon
To Next Page IconTo Next Page
To Next Page IconTo Next Page
To Previous Page IconTo Previous Page
To Previous Page IconTo Previous Page
Loading...
IOM / ROOF-TOP FLEXY™ Series - Page 101
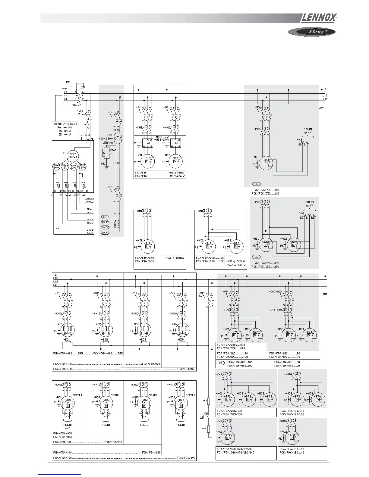
ELECTRICAL WIRING DIAGRAMS
FGA / FGK = Cooling only unit with gas firesd heating
FDA / FDK = Heat pump rooftopwith gas firesd heating
MAIN CURRENT DIAGRAM
Helicoid
Centrifugal
Helicoid
Helicoid
Helicoid
Helicoid
Helicoid
Helicoid
Helicoid
Helicoid
Helicoid
Helicoid
Helicoid
Centrifugal
Centrifugal
Centrifugal
Centrifugal
Centrifugal