EasyManua.ls Logo

Lennox LGH 036 - Unit Dimensions and Components

Lennox LGH 036
140 pages
Print Icon
To Next Page IconTo Next Page
To Next Page IconTo Next Page
To Previous Page IconTo Previous Page
To Previous Page IconTo Previous Page
Loading...
Page 2
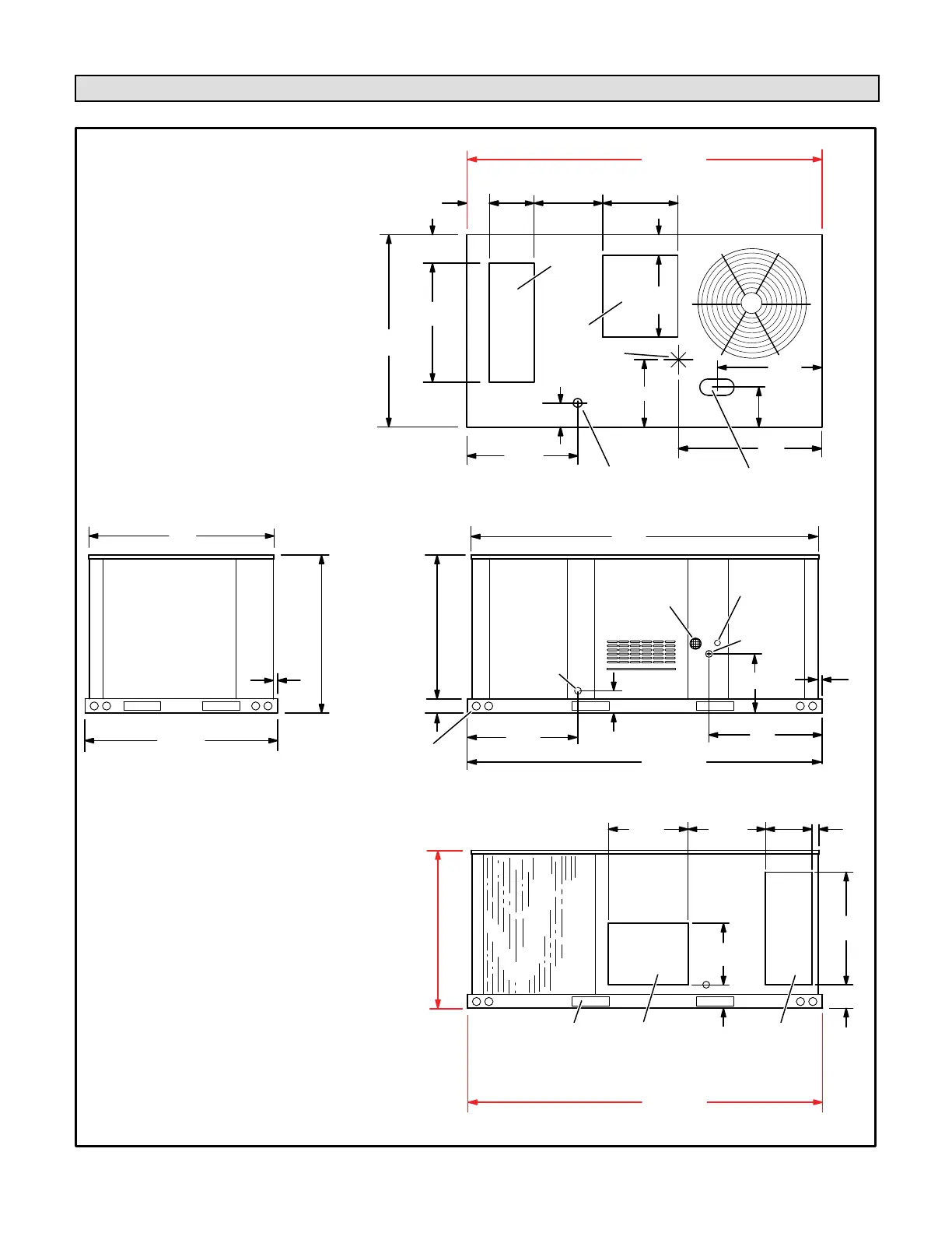
LGH/LCH036, 048, 060, 072
LGH/LCH036, 048, 060, & 072 DIMENSIONS in. - Gas heat section shown
45
(1143)
END VIEW
1 (25)
47 (1192)
BASE
38−7/8 (987) 036 thru 048
46−7/8 (1191) 060 thru 072
DD
CC
BB
AA
FF
EE
11
(279)
16−1/4
(413)
18
(457)
20
(508)
5 (102)
47 (1192)
BASE
BOTTOM
SUPPLY
AIR
OPENING
TOP VIEW (Base)
CENTER
OF
GRAVITY
9−1/2
(241)
6−5/8
(168)
26−1/2
(673)
5−5/8
(143)
29
(737)
7 (178)
BOTTOM
RETURN
AIR
OPENING
BOTTOM
CONDENSATE OUTLET
25−3/4
(654)
BOTTOM POWER ENTRY
3 X 8 (76 X 203)
18−3/8
(467)
19−1/2
(495)
5−1/2
(140)
FORKLIFT SLOTS
(Front, Back and
Blower End)
HORIZONTAL
RETURN AIR
OPENING
(Without Economizer)
HORIZONTAL
SUPPLY AIR
OPENING
2 (51)
11
(279)
29
(737)
20
(508)
5−1/2
(140)
BACK VIEW
CONDENSATE
OUTLET
(EITHER SIDE)
3−1/2 (89)
83−1/4
(2115)
85−1/4 (2165)
BASE
26−1/2
(673)
5−1/2
(140)
GAS
INLET
FLUE/VENT
OUTLET
LIFTING HOLES
(For rigging)
SIDE VIEW
27
(686)
15 (381)
ELECTRICAL
INLET
1 (25)
35−3/8 (899) 036 thru 048
43−3/8 (1102) 060 thru 072
85−1/4 (2165)
BASE
85−1/4 (2165)
BASE
38−7/8 (987) 036 thru 048
46−7/8 (1191) 060 thru 072

Related product manuals