EasyManua.ls Logo

Lennox REAL VPC H4-3P Series - Typical Unit Wiring Diagram; Wiring Diagram Symbol Explanations

Lennox REAL VPC H4-3P Series
52 pages
To Next Page IconTo Next Page
To Next Page IconTo Next Page
To Previous Page IconTo Previous Page
To Previous Page IconTo Previous Page
Loading...
28
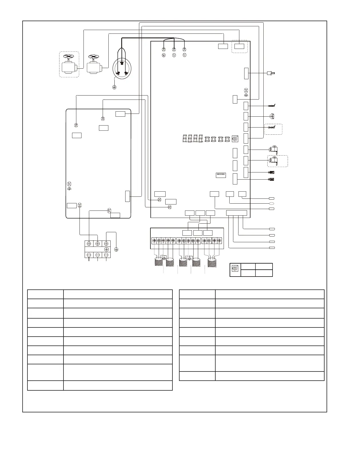
Figure 24. Typical Unit Wiring Diagram
Typical wiring diagram. Refer to
wiring diagram on the unit for
actual wiring.
SW1SW2SW3SW4
HEAT-base
ST1
DSP1 DSP2
T4
Pc
CN19
CN8
CN20
EEVC
Digital
Power Meter
IDU Comm.
IDU Comm.
PQE
X Y E
W
HyperLink
Controller
T71
TL
T8
T5
T3
L1 L2
XT1
L-IN
CN1
N-IN
CN2
BLACK RED
U
V
W
COMP.
Y/G
FAN-UP
RED
BLACK
BLUE
AC Fitter Board
Caution, low voltage wiring, do not connect to high voltage!
CN5
N-OUT
L-OUT
CN3
CN4
FAN-DOWN
ENC1
CN17
FAN-UP FAN-DOWN
CN1
CN2CN3CN4CN13CN5CN6CN12
CN16CN34CN11
CN65
USB Interface
CN7CN9CN22
CN8
CN18 CN14 CN15
CN1 CN3 CN2
CN502
CN501
O
A P
Q
E
M1
M2
C B Y
T7C1
Pe
EEVA
HEATA
H-PRO
RED
BLACK
BLUE
AHU Comm.
Inverter module Board
ENC1
2 5
3 Ton 5 Ton
ENC1 function definition:
REDBLACK
Symbol Name
COMP Compressor
H-PRO
High Pressure Switch
HEATA Crankcase heater
Pc High pressure sensor
ST1 Four-way valve
T3 Heat exchanger temperature sensor
T5 Liquid pipe temperature sensor
TL Heat exchanger liquid temperature
sensor
T7C1 Discharge temperature sensor
Symbol Name
Fan DC Fan
EEVA/C
Electronic expansion valve
Heat-base Chassis electric heating belt
Pe Low pressure sensor
XT1 Terminal block
T4 Outdoor ambient temperature sensor
T8 Heat exchanger gas temperature
sensor
T71 Suction temperature sensor
NOTE - When the unit is energized, after 10 seconds, the main board display will light up.

Related product manuals