EasyManua.ls Logo

Lenze i55 Series - Page 24

Lenze i55 Series
702 pages
Print Icon
To Next Page IconTo Next Page
To Next Page IconTo Next Page
To Previous Page IconTo Previous Page
To Previous Page IconTo Previous Page
Loading...
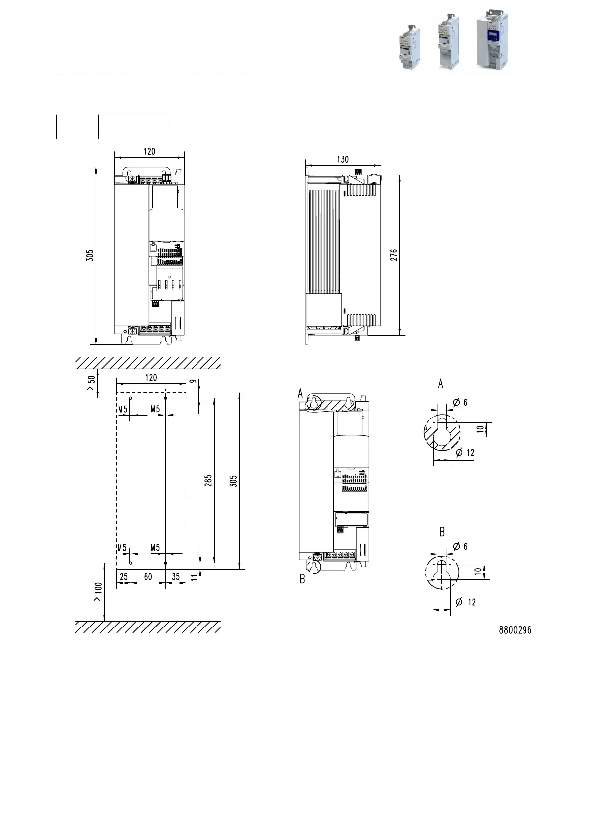
7.5 kW ... 11 kW
The dimensions in mm apply to:
7.5 kW I55AE275F
11 kW I55AE311F
Mechanical installaon
Dimensions
24

Table of Contents

Related product manuals