EasyManua.ls Logo

Lenze i950

Lenze i950
184 pages
Go to English
To Next Page IconTo Next Page
To Next Page IconTo Next Page
To Previous Page IconTo Previous Page
To Previous Page IconTo Previous Page
Loading...
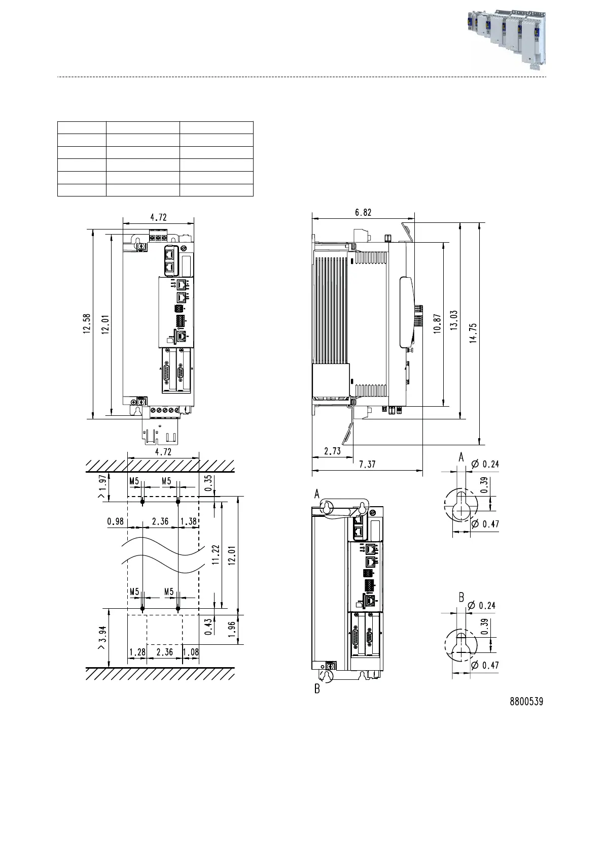
5 hp ... 20 hp
Die Abmessungen in inch gelten für:
5 hp I95AE240C
7.5 hp I95AE255C
10 hp I95AE275F
15 hp I95AE311F
20 hp I95AE315F
Gewicht 8.6 lb 8.6 lb
Mechanische Ins
tallaon
Abmessungen
28

Table of Contents

Other manuals for Lenze i950

Related product manuals