EasyManua.ls Logo

LG CU920 - Page 175

LG CU920
212 pages
Print Icon
To Next Page IconTo Next Page
To Next Page IconTo Next Page
To Previous Page IconTo Previous Page
To Previous Page IconTo Previous Page
Loading...
- 177 -
1608
1608
1608
1%
1005
1608
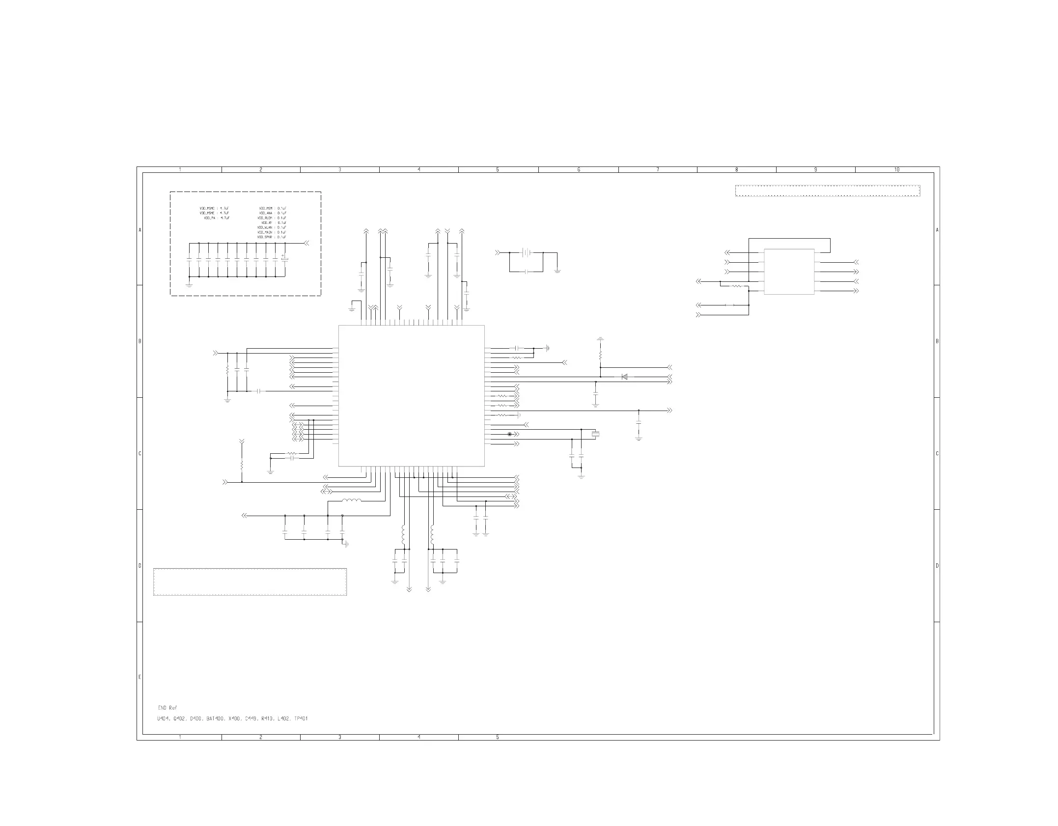
Draw the Artwork_line thickly !!!!!
PMIC VPWR BYPASS
--->> USB_VBUS , FLASH_DRV_N , KPD_DRV_N , KEY_ON_SW_N , MOT_PWR-
Check if it is LOW enable.
Power Line --> Route carefully!!!!!
Differential lines, route as equal length as possible !! --> ICHARGE , ICHARGEOUT
1608
1608
32.768KHz
X700
12
C718 2.2u
47KR707
4.7u
C714
1u
C712
C725
R70651K
27p
D700 RB521S-30
0.1uC719
BASE1
8
BASE2
7
3
COLLECTOR
DRAIN
5
1
EMITTER1
EMITTER2
2
6
GATE
9
P_COLLECTORP_DRAIN
10
SOURCE
4
NUS3116MTR2GU700
C732
4.7u
C711
C724
27p
4.7u
2.2u
C726
C7100.1u
4.7u
0.1
R700
smd_1608h_9_r
C722
C7080.1u
33u
C700
C720
smd_1608h_9_r
C734
4.7u
0.1u
100K
R708
10KR703
C727
2.2u
0.1u C706
BAT700
4.7uH
smd_2520h1_6_r
R701 121K
C707
L701
2.2u
0.1u
C716
smd_2520h1_6_r
4.7uH L702
2.2u
C723
C7090.1u
1uC721
C715
0.1u
C735
1u
C733
4.7u
10u
C730
C728
0.1u
C701 1u
C7134.7u
C7170.1u
TP700
0.1u C704
4.7uH
smd_2520h1_6_r
C7050.1u
L700
C703
1u
22u
56 R704
C729
1000p
1000p
C736
C731
51K R705
FLSH_DRV_N
8
REF_OUT(MPP8)
80
VREG_SYNT
81
82
AMUX_OUT
VDD_MAIN
83
VREG_TCXO
84
GND_SLUG
85
PON_RESET_N
9
AMUX_IN2(MPP2)
72
VREG_RFTX
73
SPKR_BYP
74
SPKR_OUT_P
75
SPKR_IN_P
76
VDD_SPKR
77
SPKR_IN_M
78
SPKR_OUT_M
79
VDD_WLAN
65
CBL1PWR_N(MPP4)
66
VREG_RFRX2
67
CBL0PWR_N(MPP3)
68
VREG_RFRX1
69
BAT_FET_N
7
AMUX_IN1(MPP1)
70
VDD_RF
71
TCXO_IN
58
MSM_INT_N
59
VBAT
6
VCOIN
60
REF_ISET
61
REF_GND
62
REF_BYP
63
VREG_WLAN
64
VREG_MSMP
50
SBST
51
VDD_MSM
52
TCXO_OUT
53
VDD_ANA
54
TCXO_EN
55
VREG_MSMA
56
PS_HOLD
57
VREG_RUIM
RUIM_RST(MPP6)
43
XTAL_IN
44
SLEEP_CLK
45
XTAL_OUT
46
SBDT
47
VBACKUP
48
SBCK
49
ISNS_M
5
VDD_MSME
VREG_MSME
36
VSW_MSME
37
RUIM_CLK(MPP10)
38
VREG_MMC
39
CHG_CTL_N
4
RUIM_M_RST(MPP5)
40
VDD_RUIM
41
42
VREG_PA
VDD_PA
29
ISNS_P
3
RUIM_M_IO(MPP11)
30
VSW_MSMC
31
VREG_MSMC
32
VDD_MSMC
33
RUIM_M_CLK(MPP9)
34
35
21
GP1_DRV_N(MPP7)
LCD_DRV_N
22
KPD_DRV_N
23
KPDPWR_N
24
VIB_DRV_N
25
RUIM_IO(MPP12)
26
VSW_PA
27
28
VSW_5V
14
USB_CTL_N
15
USB_VBUS
16
USB_DAT
17
USB_D_P
18
USB_SE0
19
VCHG
2
USB_D_M
20
ADC_BYP
1
VREG_USB
10
USB_ID
11
VREG_5V
12
USB_OE_N
13
1u
U701
PM6650-3P
200K
R702
C702
VREG_MFLO_2.6V
VREG_CAM_ACT
VBACK_UP
USB_CTL_N
ICHARGE
+5V_PWR
USB_VBUS
+VPWR
ICHARGEOUT
VBATT
BATT_FET_N
USB_CTL_N
CHG_CNT_N
+VPWR
PM_ON_SW_N
LED_CON
VREG_BT_2.85V
VBATT
+VPWR
TCXO_EN
VREG_MSMA_2.6V
PM_INT_N
+VPWR
+VPWR
+VPWR
GSM_PA_PWR_CTL_REF
VREG_SYNTH_2.6V
AMUX_OUT
+VPWR
VBATT
VREG_RF_SMPS
VREG_TCXO_2.85V
VREG_MSMP_2.8V
VBACK_UP
MOTOR_POWER-
USIM_P_DATA
+VPWR
USIM_DATA
VREG_MSMC_1.25V
USIM_CLK
VREG_MSME_1.8V
USIM_P_CLK
VREG_TFLASH_3.0V
VREG_USIM_2.85V
USIM_RST_N
USIM_P_RST_N
TCXO_MSM
+VPWR
+VPWR
SLEEP_CLK
SSBDT_PM
VREG_MSMP_2.8V
JTAG_PS_HOLD
PS_HOLD
TCXO_PM
+5V_PWR
ICHARGE
CHG_CNT_N
ICHARGEOUT
BATT_FET_N
MSM_RESIN_N
USB_OE_N
USB_VBUS
USB_DAT
USB_D+
USB_SE0
USB_D-
7. CIRCUIT DIAGRAM
LGE Internal Use Only
Copyright © 2008 LG Electronics. Inc. All right reserved.
Only for training and service purposes

Other manuals for LG CU920

Related product manuals