EasyManua.ls Logo

LG MULTI V ARNU Series - Page 107

LG MULTI V ARNU Series
120 pages
Print Icon
To Next Page IconTo Next Page
To Next Page IconTo Next Page
To Previous Page IconTo Previous Page
To Previous Page IconTo Previous Page
Loading...
- 107 -
Copyright ©2010 LG Electronics. Inc. All right reserved.
Only for training and service purposes
LGE Internal Use Only
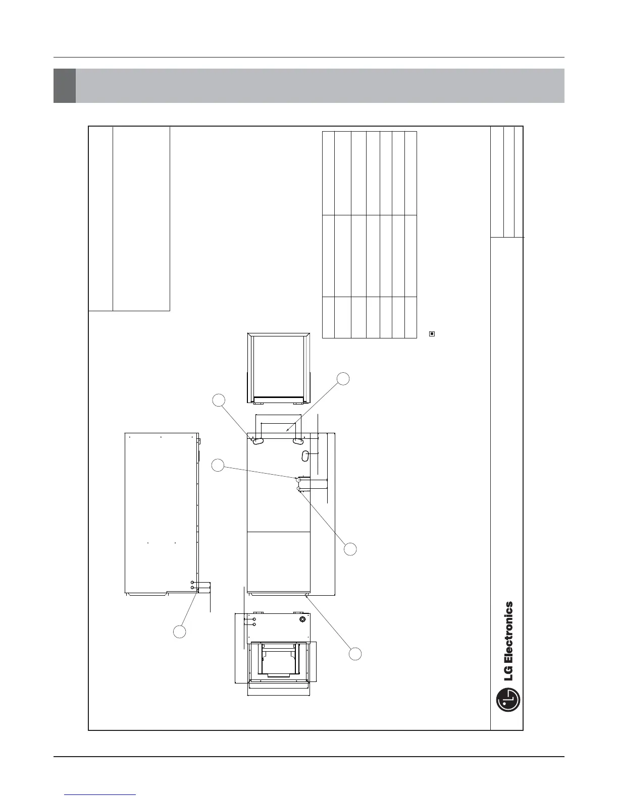
Dimensions
3. Dimensions
76, Seongsan-dong, Changwon City, Gyeongnam,LG Electronics USA, HVAC Division
1000 Sylvan Avenue, Englewood Cliffs, NJ 07632
www.lgusa.com / www.lghvac.com
641-713, Korea
www.lgeaircon.com
CHASSIS CODE: NJ
Vertical Air Handling Unit
ARNU183NJA2
ARNU243NJA2
ARNU303NJA2
ARNU363NJA2
Note
1. Unit should be installed in compliance with the installation manual
in the product box.
2. Unit shall be grounded in accordance with the local regulations or
applicable national codes.
Name
1
Liquid pipe connection
2
Gas pipe connection
3
Drain pipe connection
4
Power supply connection
5
Air discharge
6
Air suction
Number Descripition
[Unit : mm(inch)]
Unit size(18k):ø6.35(1/4)
Unit size(24k,30k):ø9.52(3/8)
Unit size(18k):ø12.7(1/2)
Unit size(24k,30k):ø15.88(5/8)
5
41(1-5/8)
40
331(13)
40(1-9/16)
364(14-5/16)
1236(48-5/8)
65
(2-9/16)
117.5(4-5/8)
254(10)
543(21-3/8)
457(18)
432(17)
308(12-1/8)
40(1-9/16)
46(1-13/16)
1
2
6
3
4

Table of Contents

Related product manuals