EasyManua.ls Logo

LG MULTI V ARNU073M1A4 - High-Static Ducted M1 Chassis

LG MULTI V ARNU073M1A4
82 pages
Print Icon
To Next Page IconTo Next Page
To Next Page IconTo Next Page
To Previous Page IconTo Previous Page
To Previous Page IconTo Previous Page
Loading...
58
Multi V Ducted Indoor Units
Due to our policy of continuous product innovation, some specifications may change without notification.
©LG Electronics U.S.A., Inc., Englewood Cliffs, NJ. All rights reserved. “LG” is a registered trademark of LG Corp.
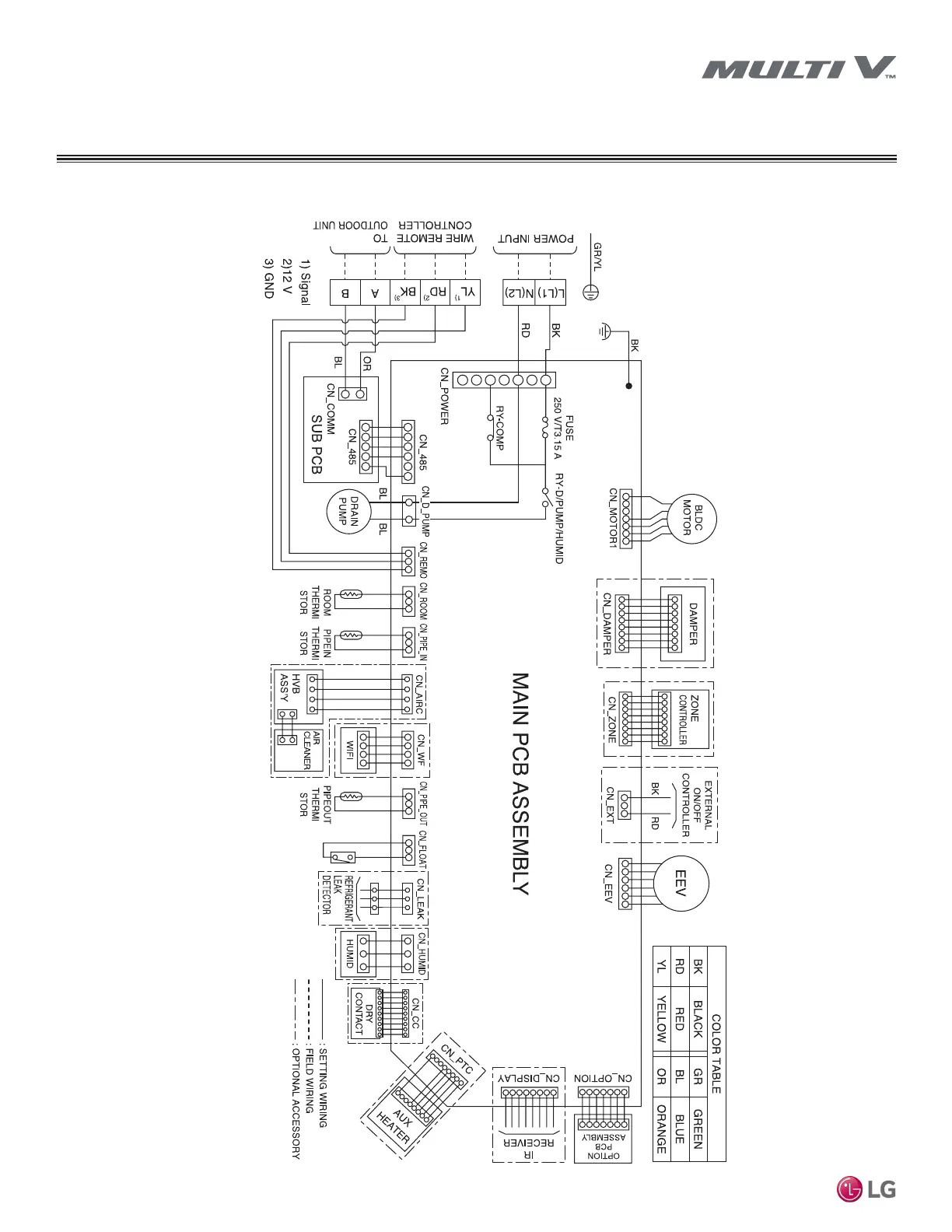
WIRING
High-Static Ducted M1 Chassis
Figure 55: High-Static Ducted M1 Chassis Wiring Diagram

Table of Contents

Related product manuals