EasyManua.ls Logo

LG MULTI V ARNU073M1A4 - Vertical Air Handler NJ Chassis

LG MULTI V ARNU073M1A4
82 pages
Print Icon
To Next Page IconTo Next Page
To Next Page IconTo Next Page
To Previous Page IconTo Previous Page
To Previous Page IconTo Previous Page
Loading...
70
Multi V Ducted Indoor Units
Due to our policy of continuous product innovation, some specifications may change without notification.
©LG Electronics U.S.A., Inc., Englewood Cliffs, NJ. All rights reserved. “LG” is a registered trademark of LG Corp.
WIRING
Vertical Air Handler NJ Chassis
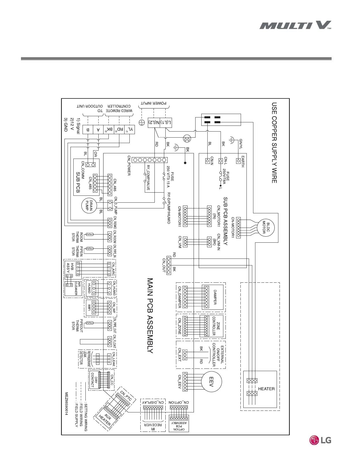
Figure 61: Vertical Air Handler NJ Chassis Wiring Diagram
Optional Connections
Figure 61 shows the control board for the NJ chassis. Connect optional equipment to the control board as required for your system.
03/2019

Table of Contents

Related product manuals